Elected Officials
Courts
Departments
Initiatives
Open Government
About
Login / Register
Home
/
Property & Tax Records
/
Property Records
/
Property & Tax Search
/
Parcel Profile
/
Print View
Search for Another Parcel
Parcel Profile
Historical Card
Sketches
Photos
Tax Map
Taxes
Print View
Print This Page
Address: 359 W FRONT ST
Parcel: 17040042021300
Parcel Profile
Address
359 | W | FRONT | ST
Street Status
PAVED
School District
CITY OF ERIE SCHOOL
Acreage
0.1250
Classification
R
Land Use Code
SINGLE FAMILY
Legal Description
359 W FRONT ST 41.25 X IRR
Square Feet
708
Topo
LEVEL
Utility
ALL PUBLIC
Zoning
Please contact your municipal zoning officer
Deed Book
2024
Deed Page
002122
2026 Tax Values
Land Value / Taxable
17,100 / 17,100.00
Building Value / Taxable
57,200 / 57,200.00
Total Value / Taxable
74,300 / 74,300.00
Clean & Green
Inactive
Homestead Status
Active
Farmstead Status
Inactive
Lerta Amount
0
Lerta Expiration Year
0
Residential Data
Card 1
Style
BUNGALOW
Basement
FULL
Year Built
1954
Exterior Wall
ALUMINUM/VINYL
Total Living Area
708
Full Baths
1
Half Baths
0
Fuel Type
GAS
Heating
CENTRAL A/C
Heating System
FORCED AIR
Stories
1.0
Total Bedrooms
2
Total Family Rooms
0
Total Rooms
4
Fireplaces
0
Other Buildings & Yards
Description
Built
Width
Length
Area
FRAME UTILITY SHED
1954
12
8
96
CARPORT
2004
18
21
378
Sales History
Sale Date
Type
Price
Book / Page
Other Info
2/9/2024
LAND & BUILDING
0
2024 / 002122
QUIT CLAIM DEED
11/4/1996
0
0469 / 1715
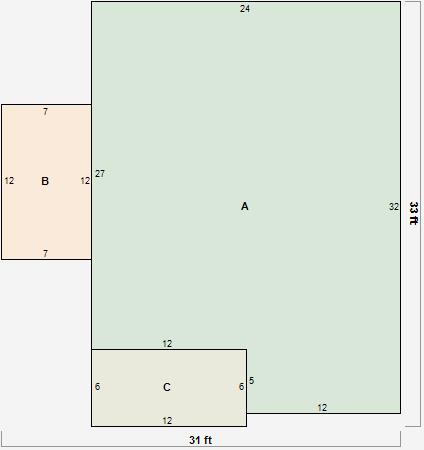
Parcel Sketches
Residential Card 1
A
MAIN
708 square feet
B
EFP ENCL FRAME PORCH
84 square feet
C
MA STOOP/TERR MAS STOOP CANPY CANOPY
72 square feet
Parcel Images
Please note:
this tab is for informational purposes only and may not show all delinquencies, see the Taxes tab for more accurate delinquent taxes due.