Elected Officials
Courts
Departments
Initiatives
Open Government
About
Login / Register
Home
/
Property & Tax Records
/
Property Records
/
Property & Tax Search
/
Parcel Profile
/
Print View
Search for Another Parcel
Parcel Profile
Historical Card
Sketches
Photos
Tax Map
Taxes
Print View
Print This Page
Address: 215 W FRONT ST
Parcel: 17040043020400
Parcel Profile
Address
215 | W | FRONT | ST
Street Status
PAVED
School District
CITY OF ERIE SCHOOL
Acreage
0.0916
Classification
R
Land Use Code
SINGLE FAMILY
Legal Description
215 W FRONT ST 41.5 X 94.85
Square Feet
3072
Topo
ABOVE STREET
Utility
ALL PUBLIC
Zoning
Please contact your municipal zoning officer
Deed Book
1343
Deed Page
2391
2026 Tax Values
Land Value / Taxable
8,000 / 8,000.00
Building Value / Taxable
147,600 / 147,600.00
Total Value / Taxable
155,600 / 155,600.00
Clean & Green
Inactive
Homestead Status
Inactive
Farmstead Status
Inactive
Lerta Amount
0
Lerta Expiration Year
0
Residential Data
Card 1
Style
OLD STYLE
Basement
FULL
Year Built
1903
Exterior Wall
FRAME
Total Living Area
3072
Full Baths
2
Half Baths
0
Fuel Type
GAS
Heating
CENTRAL
Heating System
HOT WATER
Stories
2.0
Total Bedrooms
4
Total Family Rooms
0
Total Rooms
10
Fireplaces
0
Other Buildings & Yards
No OBY Data Found
Sales History
Sale Date
Type
Price
Book / Page
Other Info
7/11/2006
LAND & BUILDING
330000
1343 / 2391
WARRANTY/SURVIVORSHIP DEED
3/17/2000
LAND & BUILDING
0
692 / 1604
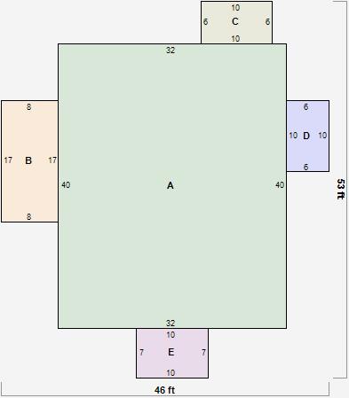
Parcel Sketches
Residential Card 1
A
MAIN
1280 square feet
B
EFP ENCL FRAME PORCH
136 square feet
C
EFP ENCL FRAME PORCH
60 square feet
D
EFP ENCL FRAME PORCH
60 square feet
E
OFP OPEN FRAME PORCH
70 square feet
Parcel Images
Please note:
this tab is for informational purposes only and may not show all delinquencies, see the Taxes tab for more accurate delinquent taxes due.