Elected Officials
Courts
Departments
Initiatives
Open Government
About
Login / Register
Home
/
Property & Tax Records
/
Property Records
/
Property & Tax Search
/
Parcel Profile
/
Print View
Search for Another Parcel
Parcel Profile
Historical Card
Sketches
Photos
Tax Map
Taxes
Print View
Print This Page
Address: 615 WASHINGTON PL
Parcel: 17041001031100
Parcel Profile
Address
615 | WASHINGTON | PL
Street Status
PAVED | SIDEWALK
School District
CITY OF ERIE SCHOOL
Acreage
0.2773
Classification
R
Land Use Code
TWO FAMILY
Legal Description
615 WASHINGTON PL 80X151.4
Square Feet
2466
Topo
LEVEL
Utility
ALL PUBLIC
Zoning
Please contact your municipal zoning officer
Deed Book
2014
Deed Page
026368
2026 Tax Values
Land Value / Taxable
9,800 / 9,800.00
Building Value / Taxable
66,900 / 66,900.00
Total Value / Taxable
76,700 / 76,700.00
Clean & Green
Inactive
Homestead Status
Inactive
Farmstead Status
Inactive
Lerta Amount
0
Lerta Expiration Year
0
Residential Data
Card 1
Style
OLD STYLE
Basement
FULL
Year Built
1833
Exterior Wall
ALUMINUM/VINYL
Total Living Area
2466
Full Baths
2
Half Baths
0
Fuel Type
GAS
Heating
CENTRAL
Heating System
FORCED AIR
Stories
2.0
Total Bedrooms
2
Total Family Rooms
0
Total Rooms
9
Fireplaces
0
Other Buildings & Yards
No OBY Data Found
Sales History
Sale Date
Type
Price
Book / Page
Other Info
12/8/2014
LAND & BUILDING
87000
2014 / 026368
SPECIAL WARRANTY DEED
3/8/2011
LAND & BUILDING
80000
2011 / 005424
SPECIAL WARRANTY DEED
12/19/1946
0
0486 / 0367
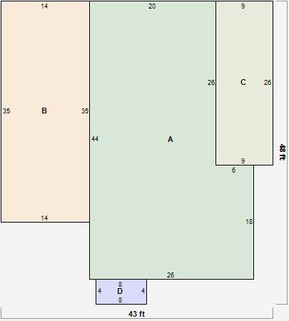
Parcel Sketches
Residential Card 1
A
MAIN
988 square feet
B
UNFIN BSMT BASEMENT UNFINISHED 1S FR ONE STORY FRAME
490 square feet
C
OFP OPEN FRAME PORCH
234 square feet
D
MA_PT CONC/MAS PATIO
32 square feet
Parcel Images
Please note:
this tab is for informational purposes only and may not show all delinquencies, see the Taxes tab for more accurate delinquent taxes due.