Elected Officials
Courts
Departments
Initiatives
Open Government
About
Login / Register
Home
/
Property & Tax Records
/
Property Records
/
Property & Tax Search
/
Parcel Profile
/
Print View
Search for Another Parcel
Parcel Profile
Historical Card
Sketches
Photos
Tax Map
Taxes
Print View
Print This Page
Address: 705 LINCOLN AVE
Parcel: 17041014021900
Parcel Profile
Address
705 | LINCOLN | AVE
Street Status
PAVED
School District
CITY OF ERIE SCHOOL
Acreage
0.1377
Classification
R
Land Use Code
SINGLE FAMILY
Legal Description
705 LINCOLN AV 40 X 150
Square Feet
1566
Topo
LEVEL
Utility
ALL PUBLIC
Zoning
Please contact your municipal zoning officer
Deed Book
2022
Deed Page
014348
2026 Tax Values
Land Value / Taxable
38,600 / 38,600.00
Building Value / Taxable
100,700 / 100,700.00
Total Value / Taxable
139,300 / 139,300.00
Clean & Green
Inactive
Homestead Status
Active
Farmstead Status
Inactive
Lerta Amount
0
Lerta Expiration Year
0
Residential Data
Card 1
Style
OLD STYLE
Basement
FULL
Year Built
1918
Exterior Wall
ALUMINUM/VINYL
Total Living Area
1566
Full Baths
1
Half Baths
1
Fuel Type
GAS
Heating
CENTRAL
Heating System
FORCED AIR
Stories
2.0
Total Bedrooms
3
Total Family Rooms
0
Total Rooms
8
Fireplaces
1
Other Buildings & Yards
Description
Built
Width
Length
Area
FRAME OR CB DETACHED GARAGE
1918
20
20
400
Sales History
Sale Date
Type
Price
Book / Page
Other Info
7/5/2022
LAND & BUILDING
199900
2022 / 014348
SPECIAL WARRANTY DEED
12/22/2010
LAND & BUILDING
148000
2010 / 032352
DEED
10/2/2006
LAND & BUILDING
0
1365 / 1867
WARRANTY/SURVIVORSHIP DEED
6/27/2006
LAND & BUILDING
129900
1340 / 0170
DEED
7/29/1996
0
0452 / 2305
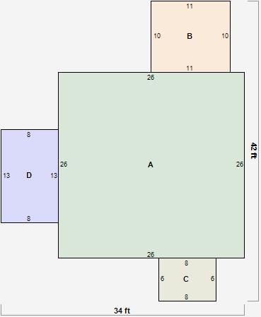
Parcel Sketches
Residential Card 1
A
MAIN
676 square feet
B
1S FR ONE STORY FRAME
110 square feet
C
EFP ENCL FRAME PORCH
48 square feet
D
1S FR ONE STORY FRAME
104 square feet
Parcel Images
Please note:
this tab is for informational purposes only and may not show all delinquencies, see the Taxes tab for more accurate delinquent taxes due.