Elected Officials
Courts
Departments
Initiatives
Open Government
About
Login / Register
Home
/
Property & Tax Records
/
Property Records
/
Property & Tax Search
/
Parcel Profile
/
Print View
Search for Another Parcel
Parcel Profile
Historical Card
Sketches
Photos
Tax Map
Taxes
Print View
Print This Page
Address: 421 LINCOLN AVE
Parcel: 17041015021800
Parcel Profile
Address
421 | LINCOLN | AVE
Street Status
PAVED | SIDEWALK
School District
CITY OF ERIE SCHOOL
Acreage
0.2755
Classification
R
Land Use Code
SINGLE FAMILY
Legal Description
421 LINCOLN AVE 80X150
Square Feet
2094
Topo
LEVEL
Utility
ALL PUBLIC
Zoning
Please contact your municipal zoning officer
Deed Book
1103
Deed Page
0606
2026 Tax Values
Land Value / Taxable
42,700 / 42,700.00
Building Value / Taxable
98,870 / 98,870.00
Total Value / Taxable
141,570 / 141,570.00
Clean & Green
Inactive
Homestead Status
Active
Farmstead Status
Inactive
Lerta Amount
0
Lerta Expiration Year
0
Residential Data
Card 1
Style
OLD STYLE
Basement
FULL
Year Built
1910
Exterior Wall
FRAME
Total Living Area
2094
Full Baths
1
Half Baths
1
Fuel Type
GAS
Heating
CENTRAL
Heating System
FORCED AIR
Stories
2.0
Total Bedrooms
4
Total Family Rooms
0
Total Rooms
7
Fireplaces
1
Other Buildings & Yards
Description
Built
Width
Length
Area
FRAME OR CB DETACHED GARAGE
1918
12
18
216
FRAME UTILITY SHED
1925
12
12
144
Sales History
Sale Date
Type
Price
Book / Page
Other Info
1/26/2004
LAND & BUILDING
127000
1103 / 0606
WARRANTY/SURVIVORSHIP DEED
10/17/2001
LAND & BUILDING
106000
818 / 134
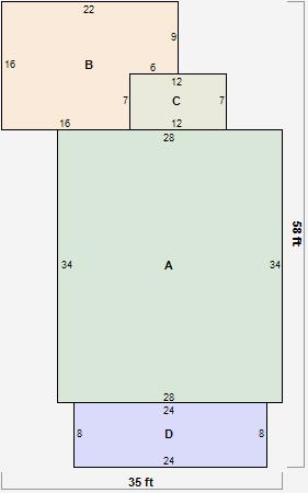
Parcel Sketches
Residential Card 1
A
MAIN
952 square feet
B
OFP OPEN FRAME PORCH
310 square feet
C
EFP ENCL FRAME PORCH EFP ENCL FRAME PORCH
84 square feet
D
EFP ENCL FRAME PORCH
192 square feet
Parcel Images
Please note:
this tab is for informational purposes only and may not show all delinquencies, see the Taxes tab for more accurate delinquent taxes due.