Elected Officials
Courts
Departments
Initiatives
Open Government
About
Login / Register
Home
/
Property & Tax Records
/
Property Records
/
Property & Tax Search
/
Parcel Profile
/
Print View
Search for Another Parcel
Parcel Profile
Historical Card
Sketches
Photos
Tax Map
Taxes
Print View
Print This Page
Address: 445 LINCOLN AVE
Parcel: 17041015022500
Parcel Profile
Address
445 | LINCOLN | AVE
Street Status
PAVED | SIDEWALK
School District
CITY OF ERIE SCHOOL
Acreage
0.2066
Classification
R
Land Use Code
SINGLE FAMILY
Legal Description
445 LINCOLN AVE 60X150
Square Feet
1859
Topo
LEVEL
Utility
ALL PUBLIC
Zoning
Please contact your municipal zoning officer
Deed Book
2023
Deed Page
013458
2026 Tax Values
Land Value / Taxable
40,700 / 40,700.00
Building Value / Taxable
90,600 / 90,600.00
Total Value / Taxable
131,300 / 131,300.00
Clean & Green
Inactive
Homestead Status
Active
Farmstead Status
Inactive
Lerta Amount
0
Lerta Expiration Year
0
Residential Data
Card 1
Style
OLD STYLE
Basement
FULL
Year Built
1910
Exterior Wall
FRAME
Total Living Area
1859
Full Baths
1
Half Baths
1
Fuel Type
GAS
Heating
CENTRAL
Heating System
FORCED AIR
Stories
1.5
Total Bedrooms
3
Total Family Rooms
1
Total Rooms
9
Fireplaces
2
Other Buildings & Yards
Description
Built
Width
Length
Area
FRAME OR CB DETACHED GARAGE
1986
16
24
384
Sales History
Sale Date
Type
Price
Book / Page
Other Info
8/15/2023
LAND & BUILDING
222000
2023 / 013458
SPECIAL WARRANTY DEED
4/27/2018
LAND & BUILDING
160000
2018 / 007916
FIDUCIARY DEED
12/14/1967
0
0973 / 0502
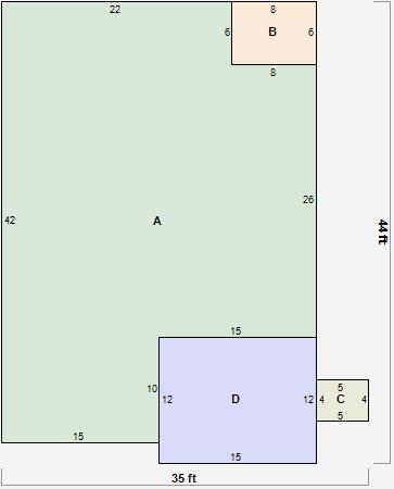
Parcel Sketches
Residential Card 1
A
MAIN
1062 square feet
B
EFP ENCL FRAME PORCH
48 square feet
C
MA STOOP/TERR MAS STOOP
20 square feet
D
EFP ENCL FRAME PORCH
180 square feet
Parcel Images
Please note:
this tab is for informational purposes only and may not show all delinquencies, see the Taxes tab for more accurate delinquent taxes due.