Elected Officials
Courts
Departments
Initiatives
Open Government
About
Login / Register
Home
/
Property & Tax Records
/
Property Records
/
Property & Tax Search
/
Parcel Profile
/
Print View
Search for Another Parcel
Parcel Profile
Historical Card
Sketches
Photos
Tax Map
Taxes
Print View
Print This Page
Address: 125 LINCOLN AVE
Parcel: 17041017011100
Parcel Profile
Address
125 | LINCOLN | AVE
Street Status
PAVED | SIDEWALK
School District
CITY OF ERIE SCHOOL
Acreage
0.3444
Classification
R
Land Use Code
SINGLE FAMILY
Legal Description
125 LINCOLN AVE 100X150
Square Feet
1678
Topo
LEVEL
Utility
ALL PUBLIC
Zoning
Please contact your municipal zoning officer
Deed Book
2020
Deed Page
012247
2026 Tax Values
Land Value / Taxable
44,700 / 44,700.00
Building Value / Taxable
95,370 / 95,370.00
Total Value / Taxable
140,070 / 140,070.00
Clean & Green
Inactive
Homestead Status
Inactive
Farmstead Status
Inactive
Lerta Amount
0
Lerta Expiration Year
0
Residential Data
Card 1
Style
OLD STYLE
Basement
PART
Year Built
1911
Exterior Wall
FRAME
Total Living Area
1678
Full Baths
2
Half Baths
0
Fuel Type
GAS
Heating
CENTRAL
Heating System
FORCED AIR
Stories
1.5
Total Bedrooms
2
Total Family Rooms
0
Total Rooms
6
Fireplaces
1
Other Buildings & Yards
Description
Built
Width
Length
Area
FRAME OR CB DETACHED GARAGE
1911
12
21
252
Sales History
Sale Date
Type
Price
Book / Page
Other Info
7/6/2020
LAND & BUILDING
155000
2020 / 012247
FIDUCIARY DEED
3/2/2012
LAND & BUILDING
170000
2012 / 005494
SPECIAL WARRANTY DEED
3/2/2011
LAND & BUILDING
140000
2011 / 005058
DEED
6/30/1998
0
0571 / 0157
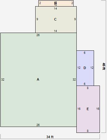
Parcel Sketches
Residential Card 1
A
MAIN
832 square feet
B
FRBAY FRAME BAY
24 square feet
C
1S FR ONE STORY FRAME
126 square feet
D
UNFIN BSMT BASEMENT UNFINISHED 1S FR ONE STORY FRAME
72 square feet
E
MA_PT CONC/MAS PATIO
128 square feet
Parcel Images
Please note:
this tab is for informational purposes only and may not show all delinquencies, see the Taxes tab for more accurate delinquent taxes due.