Elected Officials
Courts
Departments
Initiatives
Open Government
About
Login / Register
Home
/
Property & Tax Records
/
Property Records
/
Property & Tax Search
/
Parcel Profile
/
Print View
Search for Another Parcel
Parcel Profile
Historical Card
Sketches
Photos
Tax Map
Taxes
Print View
Print This Page
Address: 615 VERMONT AVE
Parcel: 17041018021400
Parcel Profile
Address
615 | VERMONT | AVE
Street Status
PAVED
School District
CITY OF ERIE SCHOOL
Acreage
0.1277
Classification
R
Land Use Code
SINGLE FAMILY
Legal Description
615 VERMONT AVE 54X103
Square Feet
1616
Topo
LEVEL
Utility
ALL PUBLIC
Zoning
Please contact your municipal zoning officer
Deed Book
2021
Deed Page
021924
2026 Tax Values
Land Value / Taxable
37,700 / 37,700.00
Building Value / Taxable
79,850 / 79,850.00
Total Value / Taxable
117,550 / 117,550.00
Clean & Green
Inactive
Homestead Status
Active
Farmstead Status
Inactive
Lerta Amount
0
Lerta Expiration Year
0
Residential Data
Card 1
Style
OLD STYLE
Basement
FULL
Year Built
1921
Exterior Wall
FRAME
Total Living Area
1616
Full Baths
1
Half Baths
1
Fuel Type
GAS
Heating
CENTRAL
Heating System
FORCED AIR
Stories
1.5
Total Bedrooms
3
Total Family Rooms
1
Total Rooms
7
Fireplaces
1
Other Buildings & Yards
Description
Built
Width
Length
Area
FRAME OR CB DETACHED GARAGE
1922
20
22
440
Sales History
Sale Date
Type
Price
Book / Page
Other Info
8/16/2021
LAND & BUILDING
172000
2021 / 021924
SPECIAL WARRANTY DEED
6/11/2020
LAND & BUILDING
150000
2020 / 010307
SPECIAL WARRANTY DEED
7/12/2012
LAND & BUILDING
112750
2012 / 018645
DEED
8/16/2010
LAND & BUILDING
39000
2010 / 020003
FIDUCIARY DEED
2/17/1976
0
1198 / 0067
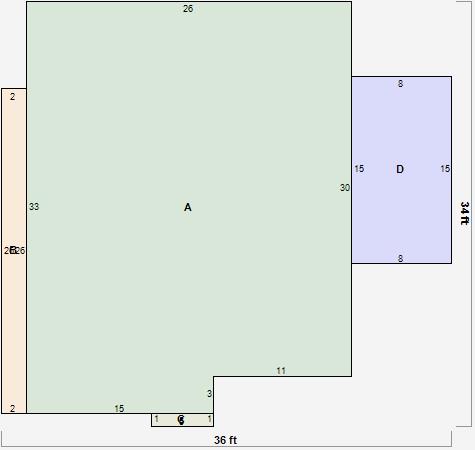
Parcel Sketches
Residential Card 1
A
MAIN
825 square feet
B
1S FR ONE STORY FRAME
52 square feet
C
MA STOOP/TERR MAS STOOP
5 square feet
D
1S FR ONE STORY FRAME
120 square feet
Parcel Images
Please note:
this tab is for informational purposes only and may not show all delinquencies, see the Taxes tab for more accurate delinquent taxes due.