Elected Officials
Courts
Departments
Initiatives
Open Government
About
Login / Register
Home
/
Property & Tax Records
/
Property Records
/
Property & Tax Search
/
Parcel Profile
/
Print View
Search for Another Parcel
Parcel Profile
Historical Card
Sketches
Photos
Tax Map
Taxes
Print View
Print This Page
Address: 629 VERMONT AVE
Parcel: 17041018021700
Parcel Profile
Address
629 | VERMONT | AVE
Street Status
PAVED
School District
CITY OF ERIE SCHOOL
Acreage
0.1277
Classification
R
Land Use Code
SINGLE FAMILY
Legal Description
629 VERMONT AVE 54 X 103
Square Feet
1704
Topo
LEVEL
Utility
ALL PUBLIC
Zoning
Please contact your municipal zoning officer
Deed Book
2019
Deed Page
016282
2026 Tax Values
Land Value / Taxable
37,700 / 37,700.00
Building Value / Taxable
81,520 / 81,520.00
Total Value / Taxable
119,220 / 119,220.00
Clean & Green
Inactive
Homestead Status
Inactive
Farmstead Status
Inactive
Lerta Amount
0
Lerta Expiration Year
0
Residential Data
Card 1
Style
OLD STYLE
Basement
FULL
Year Built
1925
Exterior Wall
MASONRY & FRAME
Total Living Area
1704
Full Baths
1
Half Baths
1
Fuel Type
GAS
Heating
CENTRAL A/C
Heating System
FORCED AIR
Stories
2.0
Total Bedrooms
3
Total Family Rooms
1
Total Rooms
7
Fireplaces
0
Other Buildings & Yards
Description
Built
Width
Length
Area
FRAME OR CB DETACHED GARAGE
1925
20
24
480
Sales History
Sale Date
Type
Price
Book / Page
Other Info
8/19/2019
LAND & BUILDING
180000
2019 / 016282
SPECIAL WARRANTY DEED
8/22/2014
LAND & BUILDING
178000
2014 / 017645
SPECIAL WARRANTY DEED
2/10/2014
LAND & BUILDING
75000
2014 / 002574
DEED
10/17/2013
LAND & BUILDING
65000
2013 / 027569
SHERIFF'S DED
6/22/2007
LAND & BUILDING
0
1425 / 1399
DEED
1/21/2005
LAND & BUILDING
101000
1205 / 2042
WARRANTY/SURVIVORSHIP DEED
6/30/1983
0
1500 / 0022
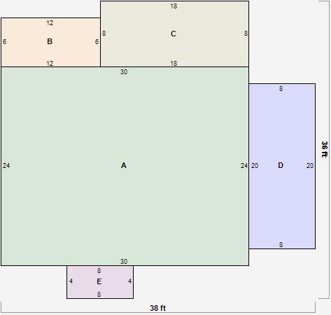
Parcel Sketches
Residential Card 1
A
MAIN
720 square feet
B
1SMAS MASONRY
72 square feet
C
OFP OPEN FRAME PORCH
144 square feet
D
1SMAS MASONRY
160 square feet
E
1SMAS MASONRY
32 square feet
Parcel Images
Please note:
this tab is for informational purposes only and may not show all delinquencies, see the Taxes tab for more accurate delinquent taxes due.