Elected Officials
Courts
Departments
Initiatives
Open Government
About
Login / Register
Home
/
Property & Tax Records
/
Property Records
/
Property & Tax Search
/
Parcel Profile
/
Print View
Search for Another Parcel
Parcel Profile
Historical Card
Sketches
Photos
Tax Map
Taxes
Print View
Print This Page
Address: 520 LINCOLN AVE
Parcel: 17041019010600
Parcel Profile
Address
520 | LINCOLN | AVE
Street Status
PAVED | SIDEWALK
School District
CITY OF ERIE SCHOOL
Acreage
0.2066
Classification
R
Land Use Code
SINGLE FAMILY
Legal Description
520 LINCOLN AVE 60X150
Square Feet
1724
Topo
LEVEL
Utility
ALL PUBLIC
Zoning
Please contact your municipal zoning officer
Deed Book
2019
Deed Page
012355
2026 Tax Values
Land Value / Taxable
40,700 / 40,700.00
Building Value / Taxable
70,600 / 70,600.00
Total Value / Taxable
111,300 / 111,300.00
Clean & Green
Inactive
Homestead Status
Active
Farmstead Status
Inactive
Lerta Amount
0
Lerta Expiration Year
0
Residential Data
Card 1
Style
CAPE
Basement
FULL
Year Built
1910
Exterior Wall
ALUMINUM/VINYL
Total Living Area
1724
Full Baths
1
Half Baths
1
Fuel Type
GAS
Heating
CENTRAL
Heating System
FORCED AIR
Stories
1.5
Total Bedrooms
3
Total Family Rooms
1
Total Rooms
6
Fireplaces
1
Other Buildings & Yards
Description
Built
Width
Length
Area
FRAME OR CB DETACHED GARAGE
1910
20
20
400
Sales History
Sale Date
Type
Price
Book / Page
Other Info
6/28/2019
LAND & BUILDING
175000
2019 / 012355
SPECIAL WARRANTY DEED
4/21/2010
LAND & BUILDING
106000
2010 / 008645
DEED
4/25/2000
0
0699 / 1738
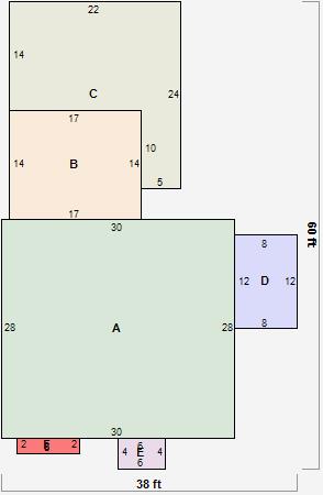
Parcel Sketches
Residential Card 1
A
MAIN
840 square feet
B
1S FR ONE STORY FRAME
238 square feet
C
WDDCK WOOD DECKS
358 square feet
D
EFP ENCL FRAME PORCH
96 square feet
E
OFP OPEN FRAME PORCH
24 square feet
F
FRBAY FRAME BAY
16 square feet
Parcel Images
Please note:
this tab is for informational purposes only and may not show all delinquencies, see the Taxes tab for more accurate delinquent taxes due.