Elected Officials
Courts
Departments
Initiatives
Open Government
About
Login / Register
Home
/
Property & Tax Records
/
Property Records
/
Property & Tax Search
/
Parcel Profile
/
Print View
Search for Another Parcel
Parcel Profile
Historical Card
Sketches
Photos
Tax Map
Taxes
Print View
Print This Page
Address: 523 KAHKWA BLVD
Parcel: 17041019021200
Parcel Profile
Address
523 | KAHKWA | BLVD
Street Status
PAVED | SIDEWALK
School District
CITY OF ERIE SCHOOL
Acreage
0.1607
Classification
R
Land Use Code
SINGLE FAMILY
Legal Description
523 KAHKWA BLVD 50X140
Square Feet
1960
Topo
LEVEL
Utility
ALL PUBLIC
Zoning
Please contact your municipal zoning officer
Deed Book
1092
Deed Page
0069
2026 Tax Values
Land Value / Taxable
36,800 / 36,800.00
Building Value / Taxable
93,100 / 93,100.00
Total Value / Taxable
129,900 / 129,900.00
Clean & Green
Inactive
Homestead Status
Active
Farmstead Status
Inactive
Lerta Amount
0
Lerta Expiration Year
0
Residential Data
Card 1
Style
TUDOR
Basement
FULL
Year Built
1930
Exterior Wall
FRAME
Total Living Area
1960
Full Baths
2
Half Baths
0
Fuel Type
GAS
Heating
CENTRAL
Heating System
FORCED AIR
Stories
1.5
Total Bedrooms
4
Total Family Rooms
0
Total Rooms
7
Fireplaces
1
Other Buildings & Yards
Description
Built
Width
Length
Area
FRAME OR CB DETACHED GARAGE
1930
20
20
400
Sales History
Sale Date
Type
Price
Book / Page
Other Info
12/4/2003
LAND & BUILDING
0
1092 / 0069
FIDUCIARY DEED
1/1/1964
0
905 / 72
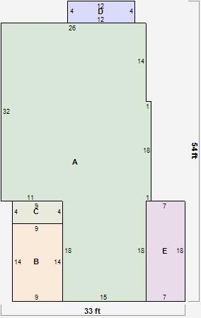
Parcel Sketches
Residential Card 1
A
MAIN
1120 square feet
B
MA_PT CONC/MAS PATIO
126 square feet
C
EMP ENCL MASONRY PORCH
36 square feet
D
EFP ENCL FRAME PORCH
48 square feet
E
OFP OPEN FRAME PORCH
126 square feet
Parcel Images
Please note:
this tab is for informational purposes only and may not show all delinquencies, see the Taxes tab for more accurate delinquent taxes due.