Elected Officials
Courts
Departments
Initiatives
Open Government
About
Login / Register
Home
/
Property & Tax Records
/
Property Records
/
Property & Tax Search
/
Parcel Profile
/
Print View
Search for Another Parcel
Parcel Profile
Historical Card
Sketches
Photos
Tax Map
Taxes
Print View
Print This Page
Address: 407 VERMONT AVE
Parcel: 17041020011300
Parcel Profile
Address
407 | VERMONT | AVE
Street Status
PAVED | SIDEWALK
School District
CITY OF ERIE SCHOOL
Acreage
0.1182
Classification
E
Land Use Code
EXEMPT SERVICE CONNECTED (VETERANS)
Legal Description
407 VERMONT AVE 50 X 103
Square Feet
1954
Topo
LEVEL
Utility
ALL PUBLIC
Zoning
Please contact your municipal zoning officer
Deed Book
1349
Deed Page
0659
2026 Tax Values
Land Value / Taxable
34,000 / 34,000.00
Building Value / Taxable
106,200 / 106,200.00
Total Value / Taxable
140,200 / 140,200.00
Clean & Green
Inactive
Homestead Status
Inactive
Farmstead Status
Inactive
Lerta Amount
0
Lerta Expiration Year
0
Residential Data
Card 1
Style
OLD STYLE
Basement
FULL
Year Built
1920
Exterior Wall
MASONRY & FRAME
Total Living Area
1954
Full Baths
1
Half Baths
1
Fuel Type
GAS
Heating
CENTRAL
Heating System
HOT WATER
Stories
2.0
Total Bedrooms
2
Total Family Rooms
0
Total Rooms
8
Fireplaces
0
Other Buildings & Yards
Description
Built
Width
Length
Area
FRAME OR CB DETACHED GARAGE
1920
18
20
360
Sales History
Sale Date
Type
Price
Book / Page
Other Info
8/1/2006
LAND & BUILDING
125000
1349 / 0659
WARRANTY/SURVIVORSHIP DEED
4/1/1991
0
0154 / 1465
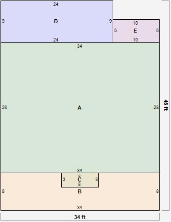
Parcel Sketches
Residential Card 1
A
MAIN
952 square feet
B
OFP OPEN FRAME PORCH
272 square feet
C
EMP ENCL MASONRY PORCH
24 square feet
D
EFP ENCL FRAME PORCH
216 square feet
E
1S FR ONE STORY FRAME
50 square feet
Parcel Images
Please note:
this tab is for informational purposes only and may not show all delinquencies, see the Taxes tab for more accurate delinquent taxes due.