Elected Officials
Courts
Departments
Initiatives
Open Government
About
Login / Register
Home
/
Property & Tax Records
/
Property Records
/
Property & Tax Search
/
Parcel Profile
/
Print View
Search for Another Parcel
Parcel Profile
Historical Card
Sketches
Photos
Tax Map
Taxes
Print View
Print This Page
Address: 455 KAHKWA BLVD
Parcel: 17041020021600
Parcel Profile
Address
455 | KAHKWA | BLVD
Street Status
PAVED | SIDEWALK
School District
CITY OF ERIE SCHOOL
Acreage
0.1928
Classification
R
Land Use Code
SINGLE FAMILY
Legal Description
455 KAHKWA BLVD 60X140
Square Feet
2904
Topo
LEVEL
Utility
ALL PUBLIC
Zoning
Please contact your municipal zoning officer
Deed Book
2023
Deed Page
021386
2026 Tax Values
Land Value / Taxable
38,900 / 38,900.00
Building Value / Taxable
197,800 / 197,800.00
Total Value / Taxable
236,700 / 236,700.00
Clean & Green
Inactive
Homestead Status
Active
Farmstead Status
Inactive
Lerta Amount
0.00
Lerta Expiration Year
2024
Residential Data
Card 1
Style
OLD STYLE
Basement
FULL
Year Built
1923
Exterior Wall
BRICK
Total Living Area
2904
Full Baths
3
Half Baths
1
Fuel Type
GAS
Heating
CENTRAL
Heating System
HOT WATER
Stories
2.0
Total Bedrooms
5
Total Family Rooms
0
Total Rooms
11
Fireplaces
3
Other Buildings & Yards
Description
Built
Width
Length
Area
BRICK OR STONE DETACHED GAR.
1923
20
20
400
Sales History
Sale Date
Type
Price
Book / Page
Other Info
12/11/2023
LAND & BUILDING
365000
2023 / 021386
SPECIAL WARRANTY DEED
8/23/2021
LAND & BUILDING
325000
2021 / 022462
SPECIAL WARRANTY DEED
2/12/2016
LAND & BUILDING
240000
2016 / 002983
SPECIAL WARRANTY DEED
8/8/2011
LAND & BUILDING
229900
2011 / 018424
WARRANTY/SURVIVORSHIP DEED
7/22/2005
LAND & BUILDING
260000
1253 / 1145
WARRANTY/SURVIVORSHIP DEED
7/3/1989
0
0091 / 1037
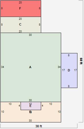
Parcel Sketches
Residential Card 1
A
MAIN
1020 square feet
B
OMP OPEN MASONRY PORCH
260 square feet
C
UNFIN BSMT BASEMENT UNFINISHED 1SMAS MASONRY 1SMAS MASONRY
160 square feet
D
UNFIN BSMT BASEMENT UNFINISHED 1SMAS MASONRY
136 square feet
E
EMP ENCL MASONRY PORCH
40 square feet
F
WDDCK WOOD DECKS
160 square feet
Parcel Images
Please note:
this tab is for informational purposes only and may not show all delinquencies, see the Taxes tab for more accurate delinquent taxes due.