Elected Officials
Courts
Departments
Initiatives
Open Government
About
Login / Register
Home
/
Property & Tax Records
/
Property Records
/
Property & Tax Search
/
Parcel Profile
/
Print View
Search for Another Parcel
Parcel Profile
Historical Card
Sketches
Photos
Tax Map
Taxes
Print View
Print This Page
Address: 315 MADISON AVE
Parcel: 17041021013600
Parcel Profile
Address
315 | MADISON | AVE
Street Status
PAVED
School District
CITY OF ERIE SCHOOL
Acreage
0.2007
Classification
R
Land Use Code
SINGLE FAMILY
Legal Description
315 MADISON AVE 62 X IRR
Square Feet
2616
Topo
LEVEL
Utility
ALL PUBLIC
Zoning
Please contact your municipal zoning officer
Deed Book
2015
Deed Page
013324
2025 Tax Values
Land Value / Taxable
39,400 / 39,400.00
Building Value / Taxable
184,500 / 181,500.00
Total Value / Taxable
223,900 / 220,900.00
Clean & Green
Inactive
Homestead Status
Active
Farmstead Status
Inactive
Lerta Amount
3000.00
Lerta Expiration Year
2025
Residential Data
Card 1
Style
OLD STYLE
Basement
FULL
Year Built
1928
Exterior Wall
MASONRY & FRAME
Total Living Area
2616
Full Baths
2
Half Baths
1
Fuel Type
GAS
Heating
CENTRAL A/C
Heating System
FORCED AIR
Stories
2.0
Total Bedrooms
4
Total Family Rooms
0
Total Rooms
8
Fireplaces
2
Other Buildings & Yards
Description
Built
Width
Length
Area
FRAME OR CB DETACHED GARAGE
2016
22
28
616
Sales History
Sale Date
Type
Price
Book / Page
Other Info
6/26/2015
LAND & BUILDING
252000
2015 / 013324
SPECIAL WARRANTY DEED
8/18/2010
LAND & BUILDING
0
2010 / 020147
QUIT CLAIM DEED
7/3/2008
LAND & BUILDING
192000
1507 / 0382
WARRANTY/SURVIVORSHIP DEED
2/27/2004
LAND & BUILDING
162000
1111 / 1142
WARRANTY/SURVIVORSHIP DEED
4/17/1995
0
0379 / 1837
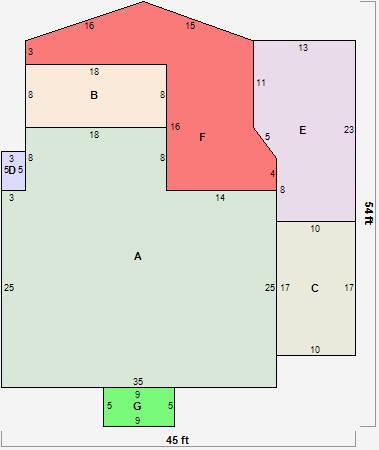
Parcel Sketches
Residential Card 1
A
MAIN
1019 square feet
B
MA STOOP/TERR MAS STOOP
144 square feet
C
1SMAS MASONRY
170 square feet
D
MA STOOP/TERR MAS STOOP
15 square feet
E
WDDCK WOOD DECKS
269 square feet
F
MA_PT CONC/MAS PATIO
354 square feet
G
OMP OPEN MASONRY PORCH
45 square feet
Parcel Images