Elected Officials
Courts
Departments
Initiatives
Open Government
About
Login / Register
Home
/
Property & Tax Records
/
Property Records
/
Property & Tax Search
/
Parcel Profile
/
Print View
Search for Another Parcel
Parcel Profile
Historical Card
Sketches
Photos
Tax Map
Taxes
Print View
Print This Page
Address: 318 MADISON AVE
Parcel: 17041021020000
Parcel Profile
Address
318 | MADISON | AVE
Street Status
PAVED
School District
CITY OF ERIE SCHOOL
Acreage
0.2022
Classification
R
Land Use Code
SINGLE FAMILY
Legal Description
318 MADISON AVE IRR
Square Feet
1906
Topo
LEVEL
Utility
ALL PUBLIC
Zoning
Please contact your municipal zoning officer
Deed Book
0162
Deed Page
0186
2025 Tax Values
Land Value / Taxable
47,400 / 47,400.00
Building Value / Taxable
142,600 / 142,600.00
Total Value / Taxable
190,000 / 190,000.00
Clean & Green
Inactive
Homestead Status
Active
Farmstead Status
Inactive
Lerta Amount
0
Lerta Expiration Year
0
Residential Data
Card 1
Style
TUDOR
Basement
FULL
Year Built
1928
Exterior Wall
ALUMINUM/VINYL
Total Living Area
1906
Full Baths
1
Half Baths
2
Fuel Type
GAS
Heating
CENTRAL
Heating System
FORCED AIR
Stories
2.0
Total Bedrooms
4
Total Family Rooms
0
Total Rooms
8
Fireplaces
0
Other Buildings & Yards
No OBY Data Found
Sales History
Sale Date
Type
Price
Book / Page
Other Info
5/28/1991
0
0162 / 0186
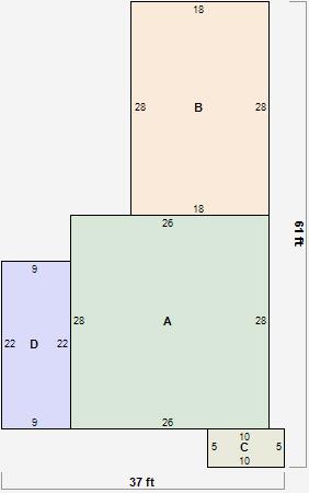
Parcel Sketches
Residential Card 1
A
MAIN
728 square feet
B
FR GR FRAME GARAGE AT FN ATTIC-FINISHED
504 square feet
C
1S FR ONE STORY FRAME
50 square feet
D
1S FR ONE STORY FRAME
198 square feet
Parcel Images