Elected Officials
Courts
Departments
Initiatives
Open Government
About
Login / Register
Home
/
Property & Tax Records
/
Property Records
/
Property & Tax Search
/
Parcel Profile
/
Print View
Search for Another Parcel
Parcel Profile
Historical Card
Sketches
Photos
Tax Map
Taxes
Print View
Print This Page
Address: 623 DELAWARE AVE
Parcel: 17041023031200
Parcel Profile
Address
623 | DELAWARE | AVE
Street Status
PAVED
School District
CITY OF ERIE SCHOOL
Acreage
0.1388
Classification
R
Land Use Code
SINGLE FAMILY
Legal Description
623 DELAWARE AVE 54X112
Square Feet
2106
Topo
LEVEL
Utility
ALL PUBLIC
Zoning
Please contact your municipal zoning officer
Deed Book
0154
Deed Page
1016
2026 Tax Values
Land Value / Taxable
38,700 / 38,700.00
Building Value / Taxable
96,220 / 96,220.00
Total Value / Taxable
134,920 / 134,920.00
Clean & Green
Inactive
Homestead Status
Active
Farmstead Status
Inactive
Lerta Amount
0
Lerta Expiration Year
0
Residential Data
Card 1
Style
OLD STYLE
Basement
FULL
Year Built
1927
Exterior Wall
MASONRY & FRAME
Total Living Area
2106
Full Baths
2
Half Baths
0
Fuel Type
GAS
Heating
CENTRAL
Heating System
FORCED AIR
Stories
2.0
Total Bedrooms
4
Total Family Rooms
1
Total Rooms
8
Fireplaces
0
Other Buildings & Yards
Description
Built
Width
Length
Area
FRAME OR CB DETACHED GARAGE
1928
21
21
441
Sales History
Sale Date
Type
Price
Book / Page
Other Info
3/28/1991
0
0154 / 1016
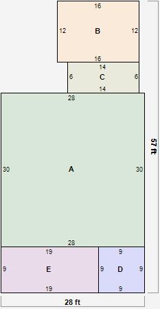
Parcel Sketches
Residential Card 1
A
MAIN
840 square feet
B
WDDCK WOOD DECKS
192 square feet
C
1S FR ONE STORY FRAME
84 square feet
D
OMP OPEN MASONRY PORCH
81 square feet
E
UNFIN BSMT BASEMENT UNFINISHED 1SMAS MASONRY 1S FR ONE STORY FRAME
171 square feet
Parcel Images
Please note:
this tab is for informational purposes only and may not show all delinquencies, see the Taxes tab for more accurate delinquent taxes due.