Elected Officials
Courts
Departments
Initiatives
Open Government
About
Login / Register
Home
/
Property & Tax Records
/
Property Records
/
Property & Tax Search
/
Parcel Profile
/
Print View
Search for Another Parcel
Parcel Profile
Historical Card
Sketches
Photos
Tax Map
Taxes
Print View
Print This Page
Address: 620 DELAWARE AVE
Parcel: 17041023040500
Parcel Profile
Address
620 | DELAWARE | AVE
Street Status
PAVED
School District
CITY OF ERIE SCHOOL
Acreage
0.1205
Classification
R
Land Use Code
SINGLE FAMILY
Legal Description
620 DELAWARE AVE 42X125.11
Square Feet
1683
Topo
LEVEL
Utility
ALL PUBLIC
Zoning
Please contact your municipal zoning officer
Deed Book
1316
Deed Page
0268
2026 Tax Values
Land Value / Taxable
37,000 / 37,000.00
Building Value / Taxable
97,170 / 97,170.00
Total Value / Taxable
134,170 / 134,170.00
Clean & Green
Inactive
Homestead Status
Active
Farmstead Status
Inactive
Lerta Amount
0
Lerta Expiration Year
0
Residential Data
Card 1
Style
OLD STYLE
Basement
FULL
Year Built
1928
Exterior Wall
ALUMINUM/VINYL
Total Living Area
1683
Full Baths
2
Half Baths
0
Fuel Type
GAS
Heating
CENTRAL A/C
Heating System
FORCED AIR
Stories
2.0
Total Bedrooms
3
Total Family Rooms
1
Total Rooms
7
Fireplaces
0
Other Buildings & Yards
Description
Built
Width
Length
Area
FRAME OR CB DETACHED GARAGE
1928
21
21
441
Sales History
Sale Date
Type
Price
Book / Page
Other Info
3/30/2006
LAND & BUILDING
130000
1316 / 0268
DEED
1/9/1946
0
0465 / 0102
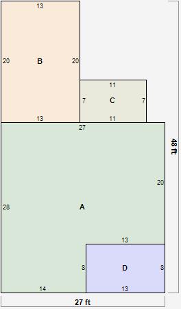
Parcel Sketches
Residential Card 1
A
MAIN
652 square feet
B
1S FR ONE STORY FRAME
260 square feet
C
1S FR ONE STORY FRAME
77 square feet
D
OFP OPEN FRAME PORCH AT FN ATTIC-FINISHED
104 square feet
Parcel Images
Please note:
this tab is for informational purposes only and may not show all delinquencies, see the Taxes tab for more accurate delinquent taxes due.