Elected Officials
Courts
Departments
Initiatives
Open Government
About
Login / Register
Home
/
Property & Tax Records
/
Property Records
/
Property & Tax Search
/
Parcel Profile
/
Print View
Search for Another Parcel
Parcel Profile
Historical Card
Sketches
Photos
Tax Map
Taxes
Print View
Print This Page
Address: 224 SHENLEY DR
Parcel: 17041033011500
Parcel Profile
Address
224 | SHENLEY | DR
Street Status
PAVED | SIDEWALK
School District
CITY OF ERIE SCHOOL
Acreage
0.1267
Classification
R
Land Use Code
SINGLE FAMILY
Legal Description
224 SHENLEY DR 40X138
Square Feet
1152
Topo
LEVEL
Utility
ALL PUBLIC
Zoning
Please contact your municipal zoning officer
Deed Book
0985
Deed Page
0650
2026 Tax Values
Land Value / Taxable
37,600 / 37,600.00
Building Value / Taxable
66,830 / 66,830.00
Total Value / Taxable
104,430 / 104,430.00
Clean & Green
Inactive
Homestead Status
Active
Farmstead Status
Inactive
Lerta Amount
0
Lerta Expiration Year
0
Residential Data
Card 1
Style
OLD STYLE
Basement
FULL
Year Built
1936
Exterior Wall
BRICK
Total Living Area
1152
Full Baths
1
Half Baths
0
Fuel Type
GAS
Heating
CENTRAL
Heating System
FORCED AIR
Stories
2.0
Total Bedrooms
3
Total Family Rooms
0
Total Rooms
7
Fireplaces
0
Other Buildings & Yards
Description
Built
Width
Length
Area
FRAME OR CB DETACHED GARAGE
1970
10
20
200
CANOPY
1970
10
20
200
Sales History
Sale Date
Type
Price
Book / Page
Other Info
7/24/1968
0
0985 / 0650
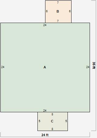
Parcel Sketches
Residential Card 1
A
MAIN
576 square feet
B
EFP ENCL FRAME PORCH
42 square feet
C
OMP OPEN MASONRY PORCH
40 square feet
Parcel Images
Please note:
this tab is for informational purposes only and may not show all delinquencies, see the Taxes tab for more accurate delinquent taxes due.