Elected Officials
Courts
Departments
Initiatives
Open Government
About
Login / Register
Home
/
Property & Tax Records
/
Property Records
/
Property & Tax Search
/
Parcel Profile
/
Print View
Search for Another Parcel
Parcel Profile
Historical Card
Sketches
Photos
Tax Map
Taxes
Print View
Print This Page
Address: 613 COLORADO DR
Parcel: 17041035011800
Parcel Profile
Address
613 | COLORADO | DR
Street Status
PAVED | SIDEWALK
School District
CITY OF ERIE SCHOOL
Acreage
0.1194
Classification
R
Land Use Code
SINGLE FAMILY
Legal Description
613 COLORADO DR 40 X 130
Square Feet
1984
Topo
LEVEL
Utility
ALL PUBLIC
Zoning
Please contact your municipal zoning officer
Deed Book
1052
Deed Page
105
2025 Tax Values
Land Value / Taxable
36,900 / 36,900.00
Building Value / Taxable
77,000 / 77,000.00
Total Value / Taxable
113,900 / 113,900.00
Clean & Green
Inactive
Homestead Status
Active
Farmstead Status
Inactive
Lerta Amount
0
Lerta Expiration Year
0
Residential Data
Card 1
Style
OLD STYLE
Basement
FULL
Year Built
1929
Exterior Wall
ALUMINUM/VINYL
Total Living Area
1984
Full Baths
2
Half Baths
1
Fuel Type
GAS
Heating
CENTRAL
Heating System
FORCED AIR
Stories
2.0
Total Bedrooms
4
Total Family Rooms
1
Total Rooms
8
Fireplaces
1
Other Buildings & Yards
Description
Built
Width
Length
Area
FRAME OR CB DETACHED GARAGE
1951
20
30
600
Sales History
Sale Date
Type
Price
Book / Page
Other Info
8/18/2003
LAND & BUILDING
105000
1052 / 105
DEED
5/31/1989
0
0088 / 0158
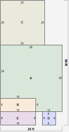
Parcel Sketches
Residential Card 1
A
MAIN
744 square feet
B
OFP OPEN FRAME PORCH FROVR FRAME OVERHANG
96 square feet
C
1S FR ONE STORY FRAME
400 square feet
D
MA STOOP/TERR MAS STOOP
36 square feet
E
MA STOOP/TERR MAS STOOP
96 square feet
Parcel Images