Elected Officials
Courts
Departments
Initiatives
Open Government
About
Login / Register
Home
/
Property & Tax Records
/
Property Records
/
Property & Tax Search
/
Parcel Profile
/
Print View
Search for Another Parcel
Parcel Profile
Historical Card
Sketches
Photos
Tax Map
Taxes
Print View
Print This Page
Address: 619 PITTSBURGH AVE
Parcel: 17041035022000
Parcel Profile
Address
619 | PITTSBURGH | AVE
Street Status
PAVED | SIDEWALK
School District
CITY OF ERIE SCHOOL
Acreage
0.1641
Classification
R
Land Use Code
SINGLE FAMILY
Legal Description
619 PITTSBURGH AVE 55 X 130
Square Feet
1456
Topo
LEVEL
Utility
ALL PUBLIC
Zoning
Please contact your municipal zoning officer
Deed Book
2020
Deed Page
007567
2025 Tax Values
Land Value / Taxable
39,400 / 39,400.00
Building Value / Taxable
80,780 / 80,780.00
Total Value / Taxable
120,180 / 120,180.00
Clean & Green
Inactive
Homestead Status
Active
Farmstead Status
Inactive
Lerta Amount
0
Lerta Expiration Year
0
Residential Data
Card 1
Style
CAPE
Basement
FULL
Year Built
1948
Exterior Wall
MASONRY & FRAME
Total Living Area
1456
Full Baths
1
Half Baths
1
Fuel Type
GAS
Heating
CENTRAL
Heating System
FORCED AIR
Stories
1.5
Total Bedrooms
3
Total Family Rooms
0
Total Rooms
6
Fireplaces
0
Other Buildings & Yards
Description
Built
Width
Length
Area
FRAME OR CB DETACHED GARAGE
1948
12
20
240
Sales History
Sale Date
Type
Price
Book / Page
Other Info
4/30/2020
LAND & BUILDING
160300
2020 / 007567
SPECIAL WARRANTY DEED
4/7/2009
LAND & BUILDING
120000
1553 / 1726
DEED
6/8/2004
LAND & BUILDING
0
1143 / 0695
WARRANTY/SURVIVORSHIP DEED
5/23/1986
0
1630 / 0202
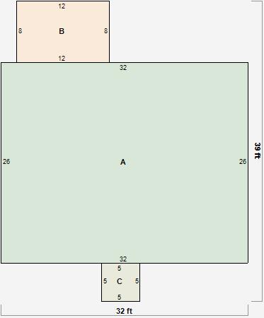
Parcel Sketches
Residential Card 1
A
MAIN
832 square feet
B
EFP ENCL FRAME PORCH
96 square feet
C
MA STOOP/TERR MAS STOOP
25 square feet
Parcel Images