Elected Officials
Courts
Departments
Initiatives
Open Government
About
Login / Register
Home
/
Property & Tax Records
/
Property Records
/
Property & Tax Search
/
Parcel Profile
/
Print View
Search for Another Parcel
Parcel Profile
Historical Card
Sketches
Photos
Tax Map
Taxes
Print View
Print This Page
Address: 414 CONNECTICUT DR
Parcel: 17041036011300
Parcel Profile
Address
414 | CONNECTICUT | DR
Street Status
PAVED | SIDEWALK
School District
CITY OF ERIE SCHOOL
Acreage
0.1492
Classification
R
Land Use Code
SINGLE FAMILY
Legal Description
414 CONNECTICUT DR 50 X 130
Square Feet
1691
Topo
LEVEL
Utility
ALL PUBLIC
Zoning
Please contact your municipal zoning officer
Deed Book
1553
Deed Page
0459
2026 Tax Values
Land Value / Taxable
39,000 / 39,000.00
Building Value / Taxable
87,040 / 87,040.00
Total Value / Taxable
126,040 / 126,040.00
Clean & Green
Inactive
Homestead Status
Active
Farmstead Status
Inactive
Lerta Amount
0
Lerta Expiration Year
0
Residential Data
Card 1
Style
OLD STYLE
Basement
FULL
Year Built
1925
Exterior Wall
FRAME
Total Living Area
1691
Full Baths
1
Half Baths
1
Fuel Type
GAS
Heating
CENTRAL
Heating System
FORCED AIR
Stories
2.0
Total Bedrooms
3
Total Family Rooms
0
Total Rooms
7
Fireplaces
1
Other Buildings & Yards
Description
Built
Width
Length
Area
FRAME OR CB DETACHED GARAGE
1927
12
18
216
FRAME UTILITY SHED
2005
6
16
96
Sales History
Sale Date
Type
Price
Book / Page
Other Info
9/26/1984
0
1553 / 0459
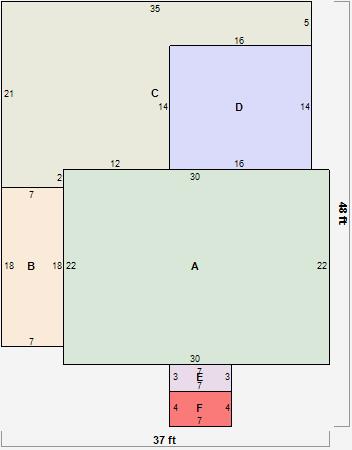
Parcel Sketches
Residential Card 1
A
MAIN
660 square feet
B
1S FR ONE STORY FRAME
126 square feet
C
WDDCK WOOD DECKS
455 square feet
D
1S FR ONE STORY FRAME
224 square feet
E
1S FR ONE STORY FRAME
21 square feet
F
MA STOOP/TERR MAS STOOP
28 square feet
Parcel Images
Please note:
this tab is for informational purposes only and may not show all delinquencies, see the Taxes tab for more accurate delinquent taxes due.