Elected Officials
Courts
Departments
Initiatives
Open Government
About
Login / Register
Home
/
Property & Tax Records
/
Property Records
/
Property & Tax Search
/
Parcel Profile
/
Print View
Search for Another Parcel
Parcel Profile
Historical Card
Sketches
Photos
Tax Map
Taxes
Print View
Print This Page
Address: 226 COLORADO DR
Parcel: 17041037020900
Parcel Profile
Address
226 | COLORADO | DR
Street Status
PAVED
School District
CITY OF ERIE SCHOOL
Acreage
0.2089
Classification
R
Land Use Code
SINGLE FAMILY
Legal Description
226 COLORADO DR 70 X 130
Square Feet
2719
Topo
ABOVE STREET
Utility
ALL PUBLIC
Zoning
Please contact your municipal zoning officer
Deed Book
2011
Deed Page
024696
2026 Tax Values
Land Value / Taxable
40,700 / 40,700.00
Building Value / Taxable
212,500 / 212,500.00
Total Value / Taxable
253,200 / 253,200.00
Clean & Green
Inactive
Homestead Status
Active
Farmstead Status
Inactive
Lerta Amount
0
Lerta Expiration Year
0
Residential Data
Card 1
Style
OLD STYLE
Basement
FULL
Year Built
1928
Exterior Wall
ALUMINUM/VINYL
Total Living Area
2719
Full Baths
3
Half Baths
1
Fuel Type
GAS
Heating
CENTRAL A/C
Heating System
FORCED AIR
Stories
2.0
Total Bedrooms
3
Total Family Rooms
0
Total Rooms
9
Fireplaces
2
Other Buildings & Yards
Description
Built
Width
Length
Area
FRAME OR CB DETACHED GARAGE
1928
22
20
440
Sales History
Sale Date
Type
Price
Book / Page
Other Info
10/17/2011
LAND & BUILDING
274500
2011 / 024696
WARRANTY/SURVIVORSHIP DEED
2/15/1996
0
0424 / 0932
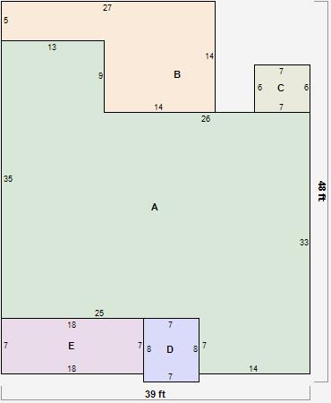
Parcel Sketches
Residential Card 1
A
MAIN
1229 square feet
B
1S FR ONE STORY FRAME
261 square feet
C
FR UT FRAME UTILITY BUILDING
42 square feet
D
OFP OPEN FRAME PORCH
56 square feet
E
ST_PT STONE OR TILE PATIO
126 square feet
Parcel Images
Please note:
this tab is for informational purposes only and may not show all delinquencies, see the Taxes tab for more accurate delinquent taxes due.