Elected Officials
Courts
Departments
Initiatives
Open Government
About
Login / Register
Home
/
Property & Tax Records
/
Property Records
/
Property & Tax Search
/
Parcel Profile
/
Print View
Search for Another Parcel
Parcel Profile
Historical Card
Sketches
Photos
Tax Map
Taxes
Print View
Print This Page
Address: 2408 STATE ST
Parcel: 18050003021300
Parcel Profile
Address
2408 | STATE | ST
Street Status
PAVED | SIDEWALK
School District
CITY OF ERIE SCHOOL
Acreage
0.1780
Classification
R
Land Use Code
THREE FAMILY
Legal Description
2408 STATE ST 50 X IRREG
Square Feet
3242
Topo
LEVEL
Utility
ALL PUBLIC
Zoning
Please contact your municipal zoning officer
Deed Book
2024
Deed Page
015295
2026 Tax Values
Land Value / Taxable
6,000 / 6,000.00
Building Value / Taxable
67,800 / 67,800.00
Total Value / Taxable
73,800 / 73,800.00
Clean & Green
Inactive
Homestead Status
Inactive
Farmstead Status
Inactive
Lerta Amount
0
Lerta Expiration Year
0
Residential Data
Card 1
Style
OLD STYLE
Basement
PART
Year Built
1894
Exterior Wall
ALUMINUM/VINYL
Total Living Area
3242
Full Baths
2
Half Baths
0
Fuel Type
GAS
Heating
CENTRAL
Heating System
FORCED AIR
Stories
2.0
Total Bedrooms
4
Total Family Rooms
0
Total Rooms
12
Fireplaces
0
Other Buildings & Yards
No OBY Data Found
Sales History
Sale Date
Type
Price
Book / Page
Other Info
9/23/2024
LAND & BUILDING
480000
2024 / 015295
SPECIAL WARRANTY DEED
2/28/1995
0
0374 / 0877
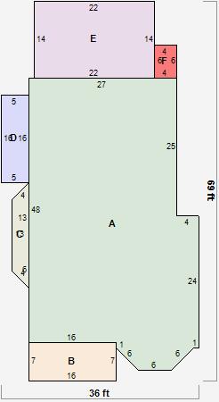
Parcel Sketches
Residential Card 1
A
MAIN
1443 square feet
B
OFP OPEN FRAME PORCH
112 square feet
C
UNFIN BSMT BASEMENT UNFINISHED 1S FR ONE STORY FRAME
48 square feet
D
OFP OPEN FRAME PORCH OFP OPEN FRAME PORCH
80 square feet
E
UNFIN BSMT BASEMENT UNFINISHED 1S FR ONE STORY FRAME
308 square feet
F
OFP OPEN FRAME PORCH
24 square feet
Parcel Images
Please note:
this tab is for informational purposes only and may not show all delinquencies, see the Taxes tab for more accurate delinquent taxes due.