Elected Officials
Courts
Departments
Initiatives
Open Government
About
Login / Register
Home
/
Property & Tax Records
/
Property Records
/
Property & Tax Search
/
Parcel Profile
/
Print View
Search for Another Parcel
Parcel Profile
Historical Card
Sketches
Photos
Tax Map
Taxes
Print View
Print This Page
Address: 124 E 26 ST
Parcel: 18050007012100
Parcel Profile
Address
124 | E | 26 | ST
Street Status
PAVED | SIDEWALK
School District
CITY OF ERIE SCHOOL
Acreage
0.1377
Classification
R
Land Use Code
SINGLE FAMILY
Legal Description
124 E 26 ST 40 X 150
Square Feet
1996
Topo
LEVEL
Utility
ALL PUBLIC
Zoning
Please contact your municipal zoning officer
Deed Book
0621
Deed Page
1050
2026 Tax Values
Land Value / Taxable
5,700 / 5,700.00
Building Value / Taxable
40,900 / 40,900.00
Total Value / Taxable
46,600 / 46,600.00
Clean & Green
Inactive
Homestead Status
Active
Farmstead Status
Inactive
Lerta Amount
0
Lerta Expiration Year
0
Residential Data
Card 1
Style
OLD STYLE
Basement
FULL
Year Built
1887
Exterior Wall
ALUMINUM/VINYL
Total Living Area
1996
Full Baths
1
Half Baths
0
Fuel Type
GAS
Heating
CENTRAL
Heating System
FORCED AIR
Stories
2.0
Total Bedrooms
4
Total Family Rooms
0
Total Rooms
8
Fireplaces
0
Other Buildings & Yards
No OBY Data Found
Sales History
Sale Date
Type
Price
Book / Page
Other Info
3/4/1999
0
0621 / 1050
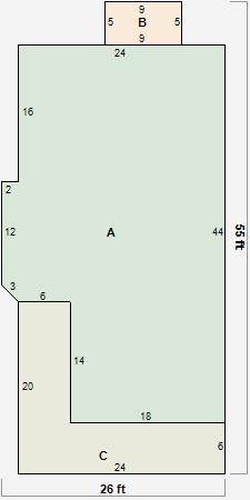
Parcel Sketches
Residential Card 1
A
MAIN
998 square feet
B
EFP ENCL FRAME PORCH
45 square feet
C
EFP ENCL FRAME PORCH
228 square feet
Parcel Images
Please note:
this tab is for informational purposes only and may not show all delinquencies, see the Taxes tab for more accurate delinquent taxes due.