Elected Officials
Courts
Departments
Initiatives
Open Government
About
Login / Register
Home
/
Property & Tax Records
/
Property Records
/
Property & Tax Search
/
Parcel Profile
/
Print View
Search for Another Parcel
Parcel Profile
Historical Card
Sketches
Photos
Tax Map
Taxes
Print View
Print This Page
Address: 2222 GERMAN ST
Parcel: 18050010020200
Parcel Profile
Address
2222 | GERMAN | ST
Street Status
PAVED | SIDEWALK
School District
CITY OF ERIE SCHOOL
Acreage
0.0676
Classification
R
Land Use Code
SINGLE FAMILY
Legal Description
2222 GERMAN ST 31 X 95
Square Feet
1416
Topo
LEVEL
Utility
ALL PUBLIC
Zoning
Please contact your municipal zoning officer
Deed Book
2020
Deed Page
004559
2026 Tax Values
Land Value / Taxable
4,900 / 4,900.00
Building Value / Taxable
19,450 / 19,450.00
Total Value / Taxable
24,350 / 24,350.00
Clean & Green
Inactive
Homestead Status
Inactive
Farmstead Status
Inactive
Lerta Amount
0
Lerta Expiration Year
0
Residential Data
Card 1
Style
OLD STYLE
Basement
FULL
Year Built
1882
Exterior Wall
ALUMINUM/VINYL
Total Living Area
1416
Full Baths
1
Half Baths
0
Fuel Type
GAS
Heating
CENTRAL
Heating System
FORCED AIR
Stories
1.5
Total Bedrooms
4
Total Family Rooms
0
Total Rooms
8
Fireplaces
0
Other Buildings & Yards
No OBY Data Found
Sales History
Sale Date
Type
Price
Book / Page
Other Info
3/9/2020
LAND & BUILDING
0
2020 / 004559
TAX DEED
1/16/1964
0
0905 / 0249
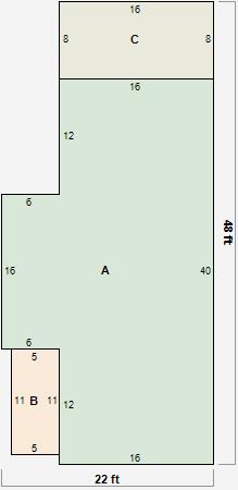
Parcel Sketches
Residential Card 1
A
MAIN
736 square feet
B
OFP OPEN FRAME PORCH
55 square feet
C
1S FR ONE STORY FRAME
128 square feet
Parcel Images
Please note:
this tab is for informational purposes only and may not show all delinquencies, see the Taxes tab for more accurate delinquent taxes due.