Elected Officials
Courts
Departments
Initiatives
Open Government
About
Login / Register
Home
/
Property & Tax Records
/
Property Records
/
Property & Tax Search
/
Parcel Profile
/
Print View
Search for Another Parcel
Parcel Profile
Historical Card
Sketches
Photos
Tax Map
Taxes
Print View
Print This Page
Address: 2406 GERMAN ST
Parcel: 18050011020500
Parcel Profile
Address
2406 | GERMAN | ST
Street Status
PAVED | SIDEWALK
School District
CITY OF ERIE SCHOOL
Acreage
0.2597
Classification
R
Land Use Code
SINGLE FAMILY
Legal Description
2406 GERMAN ST 105 X 129 IRREG | 0.2591 AC NET
Square Feet
2175
Topo
LEVEL
Utility
ALL PUBLIC
Zoning
Please contact your municipal zoning officer
Deed Book
2019
Deed Page
011211
2026 Tax Values
Land Value / Taxable
6,500 / 6,500.00
Building Value / Taxable
40,400 / 40,400.00
Total Value / Taxable
46,900 / 46,900.00
Clean & Green
Inactive
Homestead Status
Active
Farmstead Status
Inactive
Lerta Amount
0.00
Lerta Expiration Year
2016
Residential Data
Card 1
Style
OLD STYLE
Basement
FULL
Year Built
1914
Exterior Wall
ALUMINUM/VINYL
Total Living Area
2175
Full Baths
2
Half Baths
1
Fuel Type
GAS
Heating
CENTRAL
Heating System
FORCED AIR
Stories
2.0
Total Bedrooms
5
Total Family Rooms
0
Total Rooms
9
Fireplaces
0
Other Buildings & Yards
Description
Built
Width
Length
Area
FRAME OR CB DETACHED GARAGE
1914
18
21
378
Sales History
Sale Date
Type
Price
Book / Page
Other Info
6/17/2019
LAND & BUILDING
0
2019 / 011211
DEED
12/29/2005
LAND & BUILDING
0
1297 / 0338
WARRANTY/SURVIVORSHIP DEED
12/29/2005
LAND & BUILDING
16019
1297 / 0341
WARRANTY/SURVIVORSHIP DEED
8/7/1989
0
0094 / 2083
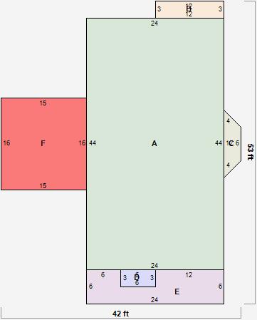
Parcel Sketches
Residential Card 1
A
MAIN
1056 square feet
B
1S FR ONE STORY FRAME
36 square feet
C
UNFIN BSMT BASEMENT UNFINISHED FRBAY FRAME BAY
27 square feet
D
EFP ENCL FRAME PORCH
18 square feet
E
OFP OPEN FRAME PORCH
126 square feet
F
WDDCK WOOD DECKS
240 square feet
Parcel Images
Please note:
this tab is for informational purposes only and may not show all delinquencies, see the Taxes tab for more accurate delinquent taxes due.