Elected Officials
Courts
Departments
Initiatives
Open Government
About
Login / Register
Home
/
Property & Tax Records
/
Property Records
/
Property & Tax Search
/
Parcel Profile
/
Print View
Search for Another Parcel
Parcel Profile
Historical Card
Sketches
Photos
Tax Map
Taxes
Print View
Print This Page
Address: 245 E 24 ST
Parcel: 18050011020800
Parcel Profile
Address
245 | E | 24 | ST
Street Status
PAVED | SIDEWALK
School District
CITY OF ERIE SCHOOL
Acreage
0.1109
Classification
R
Land Use Code
SINGLE FAMILY
Legal Description
245 E 24 ST 35.75 X 128
Square Feet
1647
Topo
LEVEL
Utility
ALL PUBLIC
Zoning
Please contact your municipal zoning officer
Deed Book
2020
Deed Page
011243
2026 Tax Values
Land Value / Taxable
5,500 / 5,500.00
Building Value / Taxable
33,600 / 33,600.00
Total Value / Taxable
39,100 / 39,100.00
Clean & Green
Inactive
Homestead Status
Inactive
Farmstead Status
Inactive
Lerta Amount
0
Lerta Expiration Year
0
Residential Data
Card 1
Style
OLD STYLE
Basement
FULL
Year Built
1905
Exterior Wall
ALUMINUM/VINYL
Total Living Area
1647
Full Baths
2
Half Baths
0
Fuel Type
GAS
Heating
CENTRAL
Heating System
FORCED AIR
Stories
2.0
Total Bedrooms
3
Total Family Rooms
1
Total Rooms
8
Fireplaces
0
Other Buildings & Yards
No OBY Data Found
Sales History
Sale Date
Type
Price
Book / Page
Other Info
6/23/2020
LAND & BUILDING
18100
2020 / 011243
SPECIAL WARRANTY DEED
2/18/2020
LAND & BUILDING
0
2020 / 003161
SHERIFF'S DED
2/27/1998
0
0544 / 2278
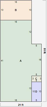
Parcel Sketches
Residential Card 1
A
MAIN
736 square feet
B
1S FR ONE STORY FRAME
160 square feet
C
1S FR ONE STORY FRAME
15 square feet
D
OFP OPEN FRAME PORCH
50 square feet
Parcel Images
Please note:
this tab is for informational purposes only and may not show all delinquencies, see the Taxes tab for more accurate delinquent taxes due.