Elected Officials
Courts
Departments
Initiatives
Open Government
About
Login / Register
Home
/
Property & Tax Records
/
Property Records
/
Property & Tax Search
/
Parcel Profile
/
Print View
Search for Another Parcel
Parcel Profile
Historical Card
Sketches
Photos
Tax Map
Taxes
Print View
Print This Page
Address: 341 E 21 ST
Parcel: 18050013010900
Parcel Profile
Address
341 | E | 21 | ST
Street Status
PAVED | SIDEWALK
School District
CITY OF ERIE SCHOOL
Acreage
0.1085
Classification
R
Land Use Code
SINGLE FAMILY
Legal Description
341 E 21 ST 35 X 135
Square Feet
1626
Topo
LEVEL
Utility
ALL PUBLIC
Zoning
Please contact your municipal zoning officer
Deed Book
2022
Deed Page
009645
2026 Tax Values
Land Value / Taxable
5,500 / 5,500.00
Building Value / Taxable
39,200 / 39,200.00
Total Value / Taxable
44,700 / 44,700.00
Clean & Green
Inactive
Homestead Status
Inactive
Farmstead Status
Inactive
Lerta Amount
0
Lerta Expiration Year
0
Residential Data
Card 1
Style
OLD STYLE
Basement
FULL
Year Built
1897
Exterior Wall
ALUMINUM/VINYL
Total Living Area
1626
Full Baths
1
Half Baths
0
Fuel Type
GAS
Heating
CENTRAL
Heating System
FORCED AIR
Stories
2.0
Total Bedrooms
4
Total Family Rooms
0
Total Rooms
9
Fireplaces
0
Other Buildings & Yards
No OBY Data Found
Sales History
Sale Date
Type
Price
Book / Page
Other Info
5/5/2022
LAND & BUILDING
6000
2022 / 009645
QUIT CLAIM DEED
2/16/2016
LAND & BUILDING
6000
2016 / 003131
DEED
3/27/2013
LAND & BUILDING
0
2013 / 007031
TAX DEED
6/22/2006
LAND & BUILDING
0
1338 / 1996
DEED
1/23/1968
0
0975 / 0531
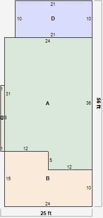
Parcel Sketches
Residential Card 1
A
MAIN
804 square feet
B
EFP ENCL FRAME PORCH
300 square feet
C
FROVR FRAME OVERHANG
18 square feet
D
EFP ENCL FRAME PORCH
210 square feet
Parcel Images
Please note:
this tab is for informational purposes only and may not show all delinquencies, see the Taxes tab for more accurate delinquent taxes due.