Elected Officials
Courts
Departments
Initiatives
Open Government
About
Login / Register
Home
/
Property & Tax Records
/
Property Records
/
Property & Tax Search
/
Parcel Profile
/
Print View
Search for Another Parcel
Parcel Profile
Historical Card
Sketches
Photos
Tax Map
Taxes
Print View
Print This Page
Address: 336 E 22 ST
Parcel: 18050013013400
Parcel Profile
Address
336 | E | 22 | ST
Street Status
PAVED | SIDEWALK
School District
CITY OF ERIE SCHOOL
Acreage
0.1302
Classification
R
Land Use Code
SINGLE FAMILY
Legal Description
336 E 22 ST 42 X 135
Square Feet
2374
Topo
LEVEL
Utility
ALL PUBLIC
Zoning
Please contact your municipal zoning officer
Deed Book
2021
Deed Page
014259
2026 Tax Values
Land Value / Taxable
5,600 / 5,600.00
Building Value / Taxable
32,400 / 32,400.00
Total Value / Taxable
38,000 / 38,000.00
Clean & Green
Inactive
Homestead Status
Active
Farmstead Status
Inactive
Lerta Amount
0
Lerta Expiration Year
0
Residential Data
Card 1
Style
OLD STYLE
Basement
FULL
Year Built
1905
Exterior Wall
ALUMINUM/VINYL
Total Living Area
2374
Full Baths
2
Half Baths
0
Fuel Type
GAS
Heating
CENTRAL
Heating System
FORCED AIR
Stories
2.0
Total Bedrooms
5
Total Family Rooms
0
Total Rooms
12
Fireplaces
0
Other Buildings & Yards
No OBY Data Found
Sales History
Sale Date
Type
Price
Book / Page
Other Info
6/4/2021
LAND & BUILDING
0
2021 / 014259
SPECIAL WARRANTY DEED
10/1/1968
0
0991 / 0056
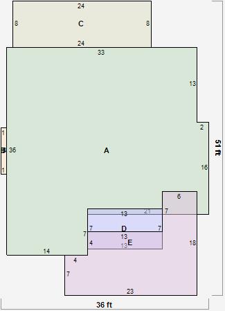
Parcel Sketches
Residential Card 1
A
MAIN
1087 square feet
B
FRBAY FRAME BAY
8 square feet
C
1S FR ONE STORY FRAME
192 square feet
D
EFP ENCL FRAME PORCH
91 square feet
E
OFP OPEN FRAME PORCH
279 square feet
Parcel Images
Please note:
this tab is for informational purposes only and may not show all delinquencies, see the Taxes tab for more accurate delinquent taxes due.