Elected Officials
Courts
Departments
Initiatives
Open Government
About
Login / Register
Home
/
Property & Tax Records
/
Property Records
/
Property & Tax Search
/
Parcel Profile
/
Print View
Search for Another Parcel
Parcel Profile
Historical Card
Sketches
Photos
Tax Map
Taxes
Print View
Print This Page
Address: 360 E 21 ST
Parcel: 18050013022800
Parcel Profile
Address
360 | E | 21 | ST
Street Status
PAVED | SIDEWALK
School District
CITY OF ERIE SCHOOL
Acreage
0.0758
Classification
R
Land Use Code
TWO FAMILY
Legal Description
360 E 21 ST 33 X 100
Square Feet
1924
Topo
LEVEL
Utility
ALL PUBLIC
Zoning
Please contact your municipal zoning officer
Deed Book
0087
Deed Page
1230
2026 Tax Values
Land Value / Taxable
5,100 / 5,100.00
Building Value / Taxable
25,900 / 25,900.00
Total Value / Taxable
31,000 / 31,000.00
Clean & Green
Inactive
Homestead Status
Active
Farmstead Status
Inactive
Lerta Amount
0
Lerta Expiration Year
0
Residential Data
Card 1
Style
OLD STYLE
Basement
FULL
Year Built
1901
Exterior Wall
COMPOSITION
Total Living Area
1924
Full Baths
2
Half Baths
0
Fuel Type
GAS
Heating
CENTRAL
Heating System
FORCED AIR
Stories
2.0
Total Bedrooms
6
Total Family Rooms
0
Total Rooms
10
Fireplaces
0
Other Buildings & Yards
No OBY Data Found
Sales History
Sale Date
Type
Price
Book / Page
Other Info
5/26/1989
0
0087 / 1230
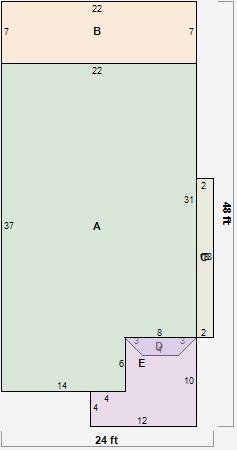
Parcel Sketches
Residential Card 1
A
MAIN
766 square feet
B
1S FR ONE STORY FRAME 1S FR ONE STORY FRAME
154 square feet
C
UNFIN BSMT BASEMENT UNFINISHED FRBAY FRAME BAY FROVR FRAME OVERHANG
36 square feet
D
OFP OPEN FRAME PORCH FRBAY FRAME BAY
12 square feet
E
OFP OPEN FRAME PORCH
96 square feet
Parcel Images
Please note:
this tab is for informational purposes only and may not show all delinquencies, see the Taxes tab for more accurate delinquent taxes due.