Elected Officials
Courts
Departments
Initiatives
Open Government
About
Login / Register
Home
/
Property & Tax Records
/
Property Records
/
Property & Tax Search
/
Parcel Profile
/
Print View
Search for Another Parcel
Parcel Profile
Historical Card
Sketches
Photos
Tax Map
Taxes
Print View
Print This Page
Address: 342 E 25 ST
Parcel: 18050015023100
Parcel Profile
Address
342 | E | 25 | ST
Street Status
PAVED | SIDEWALK
School District
CITY OF ERIE SCHOOL
Acreage
0.0930
Classification
R
Land Use Code
TWO FAMILY
Legal Description
342 E 25 ST 40 X 135
Square Feet
2216
Topo
LEVEL
Utility
ALL PUBLIC
Zoning
Please contact your municipal zoning officer
Deed Book
0678
Deed Page
0296
2026 Tax Values
Land Value / Taxable
5,400 / 5,400.00
Building Value / Taxable
32,400 / 32,400.00
Total Value / Taxable
37,800 / 37,800.00
Clean & Green
Inactive
Homestead Status
Active
Farmstead Status
Inactive
Lerta Amount
0
Lerta Expiration Year
0
Residential Data
Card 1
Style
OLD STYLE
Basement
FULL
Year Built
1897
Exterior Wall
BLOCK
Total Living Area
2216
Full Baths
2
Half Baths
0
Fuel Type
GAS
Heating
CENTRAL
Heating System
FORCED AIR
Stories
2.0
Total Bedrooms
6
Total Family Rooms
0
Total Rooms
10
Fireplaces
0
Other Buildings & Yards
Description
Built
Width
Length
Area
FRAME OR CB DETACHED GARAGE
1968
14
22
308
Sales History
Sale Date
Type
Price
Book / Page
Other Info
12/10/1999
LAND & BUILDING
34000
0678 / 0296
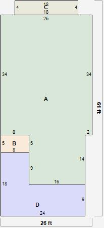
Parcel Sketches
Residential Card 1
A
MAIN
1108 square feet
B
EFP ENCL FRAME PORCH
40 square feet
C
EFP ENCL FRAME PORCH
72 square feet
D
OFP OPEN FRAME PORCH
288 square feet
Parcel Images
Please note:
this tab is for informational purposes only and may not show all delinquencies, see the Taxes tab for more accurate delinquent taxes due.