Elected Officials
Courts
Departments
Initiatives
Open Government
About
Login / Register
Home
/
Property & Tax Records
/
Property Records
/
Property & Tax Search
/
Parcel Profile
/
Print View
Search for Another Parcel
Parcel Profile
Historical Card
Sketches
Photos
Tax Map
Taxes
Print View
Print This Page
Address: 346 E 25 ST
Parcel: 18050015023200
Parcel Profile
Address
346 | E | 25 | ST
Street Status
PAVED | SIDEWALK
School District
CITY OF ERIE SCHOOL
Acreage
0.0930
Classification
R
Land Use Code
SINGLE FAMILY
Legal Description
346 E 25 ST 40 X 135
Square Feet
1536
Topo
LEVEL
Utility
ALL PUBLIC
Zoning
Please contact your municipal zoning officer
Deed Book
2018
Deed Page
017119
2026 Tax Values
Land Value / Taxable
5,400 / 5,400.00
Building Value / Taxable
21,490 / 21,490.00
Total Value / Taxable
26,890 / 26,890.00
Clean & Green
Inactive
Homestead Status
Inactive
Farmstead Status
Inactive
Lerta Amount
0
Lerta Expiration Year
0
Residential Data
Card 1
Style
OLD STYLE
Basement
FULL
Year Built
1892
Exterior Wall
ALUMINUM/VINYL
Total Living Area
1536
Full Baths
1
Half Baths
0
Fuel Type
GAS
Heating
CENTRAL
Heating System
FORCED AIR
Stories
1.5
Total Bedrooms
4
Total Family Rooms
0
Total Rooms
7
Fireplaces
0
Other Buildings & Yards
No OBY Data Found
Sales History
Sale Date
Type
Price
Book / Page
Other Info
8/21/2018
LAND & BUILDING
29041
2018 / 017119
WARRANTY/SURVIVORSHIP DEED
11/27/2000
LAND & BUILDING
13500
739 / 1327
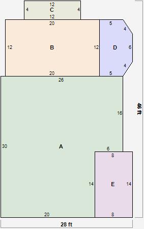
Parcel Sketches
Residential Card 1
A
MAIN
696 square feet
B
1S FR ONE STORY FRAME
240 square feet
C
EFP ENCL FRAME PORCH
48 square feet
D
1S FR ONE STORY FRAME
78 square feet
E
OFP OPEN FRAME PORCH
112 square feet
Parcel Images
Please note:
this tab is for informational purposes only and may not show all delinquencies, see the Taxes tab for more accurate delinquent taxes due.