Elected Officials
Courts
Departments
Initiatives
Open Government
About
Login / Register
Home
/
Property & Tax Records
/
Property Records
/
Property & Tax Search
/
Parcel Profile
/
Print View
Search for Another Parcel
Parcel Profile
Historical Card
Sketches
Photos
Tax Map
Taxes
Print View
Print This Page
Address: 2213 PARADE ST
Parcel: 18050018022600
Parcel Profile
Address
2213 | PARADE | ST
Street Status
PAVED | SIDEWALK
School District
CITY OF ERIE SCHOOL
Acreage
0.0689
Classification
R
Land Use Code
SINGLE FAMILY
Legal Description
2213 PARADE ST
Square Feet
1764
Topo
LEVEL
Utility
ALL PUBLIC
Zoning
Please contact your municipal zoning officer
Deed Book
0720
Deed Page
0789
2026 Tax Values
Land Value / Taxable
6,000 / 6,000.00
Building Value / Taxable
30,000 / 30,000.00
Total Value / Taxable
36,000 / 36,000.00
Clean & Green
Inactive
Homestead Status
Active
Farmstead Status
Inactive
Lerta Amount
0
Lerta Expiration Year
0
Residential Data
Card 1
Basement
FULL
Year Built
1921
Exterior Wall
BRICK
Total Living Area
1764
Full Baths
1
Half Baths
0
Fuel Type
GAS
Heating
CENTRAL
Heating System
FORCED AIR
Stories
2.0
Total Bedrooms
4
Total Family Rooms
0
Total Rooms
8
Fireplaces
0
Other Buildings & Yards
Description
Built
Width
Length
Area
FRAME OR CB DETACHED GARAGE
1921
18
22
396
Sales History
Sale Date
Type
Price
Book / Page
Other Info
8/14/2000
0
0720 / 0789
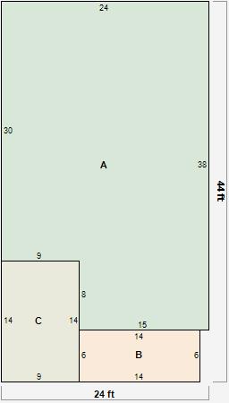
Parcel Sketches
Residential Card 1
A
MAIN
840 square feet
B
UNFIN BSMT BASEMENT UNFINISHED 1S FR ONE STORY FRAME
84 square feet
C
OFP OPEN FRAME PORCH
126 square feet
Parcel Images