Elected Officials
Courts
Departments
Initiatives
Open Government
About
Login / Register
Home
/
Property & Tax Records
/
Property Records
/
Property & Tax Search
/
Parcel Profile
/
Print View
Search for Another Parcel
Parcel Profile
Historical Card
Sketches
Photos
Tax Map
Taxes
Print View
Print This Page
Address: 2002 COTTAGE AVE
Parcel: 18050021030700
Parcel Profile
Address
2002 | COTTAGE | AVE
Street Status
PAVED | SIDEWALK
School District
CITY OF ERIE SCHOOL
Acreage
0.0973
Classification
R
Land Use Code
SINGLE FAMILY
Legal Description
2002 COTTAGE AVE 40 X 106
Square Feet
1400
Topo
LEVEL
Utility
ALL PUBLIC
Zoning
Please contact your municipal zoning officer
Deed Book
2025
Deed Page
021188
2026 Tax Values
Land Value / Taxable
5,400 / 5,400.00
Building Value / Taxable
31,800 / 31,800.00
Total Value / Taxable
37,200 / 37,200.00
Clean & Green
Inactive
Homestead Status
Active
Farmstead Status
Inactive
Lerta Amount
0
Lerta Expiration Year
0
Residential Data
Card 1
Style
OLD STYLE
Basement
FULL
Year Built
1885
Exterior Wall
ALUMINUM/VINYL
Total Living Area
1400
Full Baths
1
Half Baths
0
Fuel Type
GAS
Heating
CENTRAL
Heating System
FORCED AIR
Stories
2.0
Total Bedrooms
3
Total Family Rooms
0
Total Rooms
8
Fireplaces
0
Other Buildings & Yards
Description
Built
Width
Length
Area
FRAME UTILITY SHED
2001
10
10
100
Sales History
Sale Date
Type
Price
Book / Page
Other Info
11/25/2025
LAND & BUILDING
105000
2025 / 021188
SPECIAL WARRANTY DEED
9/16/1998
0
0587 / 2001
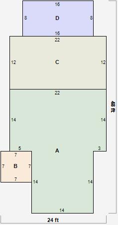
Parcel Sketches
Residential Card 1
A
MAIN
504 square feet
B
EFP ENCL FRAME PORCH
49 square feet
C
1S FR ONE STORY FRAME
264 square feet
D
1S FR ONE STORY FRAME
128 square feet
Parcel Images
Please note:
this tab is for informational purposes only and may not show all delinquencies, see the Taxes tab for more accurate delinquent taxes due.