Elected Officials
Courts
Departments
Initiatives
Open Government
About
Login / Register
Home
/
Property & Tax Records
/
Property Records
/
Property & Tax Search
/
Parcel Profile
/
Print View
Search for Another Parcel
Parcel Profile
Historical Card
Sketches
Photos
Tax Map
Taxes
Print View
Print This Page
Address: 508 E 21 ST
Parcel: 18050021031500
Parcel Profile
Address
508 | E | 21 | ST
Street Status
PAVED | SIDEWALK
School District
CITY OF ERIE SCHOOL
Acreage
0.0803
Classification
R
Land Use Code
SINGLE FAMILY
Legal Description
508 E 21 ST 35 X 100
Square Feet
1288
Topo
LEVEL
Utility
ALL PUBLIC
Zoning
Please contact your municipal zoning officer
Deed Book
1558
Deed Page
0511
2026 Tax Values
Land Value / Taxable
5,200 / 5,200.00
Building Value / Taxable
27,200 / 27,200.00
Total Value / Taxable
32,400 / 32,400.00
Clean & Green
Inactive
Homestead Status
Active
Farmstead Status
Inactive
Lerta Amount
0
Lerta Expiration Year
0
Residential Data
Card 1
Style
OLD STYLE
Basement
FULL
Year Built
1896
Exterior Wall
ALUMINUM/VINYL
Total Living Area
1288
Full Baths
1
Half Baths
0
Fuel Type
GAS
Heating
CENTRAL
Heating System
FORCED AIR
Stories
1.5
Total Bedrooms
3
Total Family Rooms
0
Total Rooms
7
Fireplaces
0
Other Buildings & Yards
Description
Built
Width
Length
Area
FRAME OR CB DETACHED GARAGE
1940
10
20
200
Sales History
Sale Date
Type
Price
Book / Page
Other Info
4/29/2009
LAND & BUILDING
0
1558 / 0511
DEED
5/11/2007
LAND & BUILDING
24900
1415 / 0878
DEED
2/3/2006
LAND & BUILDING
0
1304 / 0723
SHERIFF'S DED
5/30/1978
0
1306 / 0487
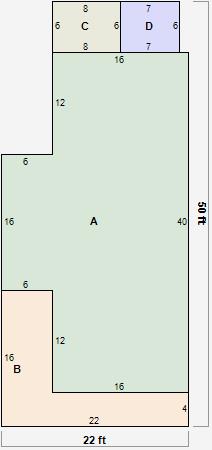
Parcel Sketches
Residential Card 1
A
MAIN
736 square feet
B
EFP ENCL FRAME PORCH
160 square feet
C
OFP OPEN FRAME PORCH
48 square feet
D
EFP ENCL FRAME PORCH
42 square feet
Parcel Images