Elected Officials
Courts
Departments
Initiatives
Open Government
About
Login / Register
Home
/
Property & Tax Records
/
Property Records
/
Property & Tax Search
/
Parcel Profile
/
Print View
Search for Another Parcel
Parcel Profile
Historical Card
Sketches
Photos
Tax Map
Taxes
Print View
Print This Page
Address: 514 16 E 26 ST
Parcel: 18050023011500
Parcel Profile
Address
514 | 16 | E | 26 | ST
Street Status
PAVED | SIDEWALK
School District
CITY OF ERIE SCHOOL
Acreage
0.1313
Classification
R
Land Use Code
TWO FAMILY
Legal Description
514 16 E 26 ST 40 X 143
Square Feet
2064
Topo
LEVEL
Utility
ALL PUBLIC
Zoning
Please contact your municipal zoning officer
Deed Book
0752
Deed Page
0221
2026 Tax Values
Land Value / Taxable
5,600 / 5,600.00
Building Value / Taxable
32,300 / 32,300.00
Total Value / Taxable
37,900 / 37,900.00
Clean & Green
Inactive
Homestead Status
Inactive
Farmstead Status
Inactive
Lerta Amount
0
Lerta Expiration Year
0
Residential Data
Card 1
Style
OLD STYLE
Basement
FULL
Year Built
1907
Exterior Wall
FRAME
Total Living Area
2064
Full Baths
2
Half Baths
0
Fuel Type
GAS
Heating
CENTRAL
Heating System
FORCED AIR
Stories
2.0
Total Bedrooms
4
Total Family Rooms
0
Total Rooms
10
Fireplaces
0
Other Buildings & Yards
Description
Built
Width
Length
Area
FRAME OR CB DETACHED GARAGE
1960
22
24
528
Sales History
Sale Date
Type
Price
Book / Page
Other Info
2/9/2001
LAND & BUILDING
46000
0752 / 0221
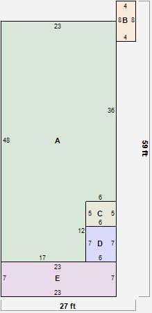
Parcel Sketches
Residential Card 1
A
MAIN
1032 square feet
B
OFP OPEN FRAME PORCH
32 square feet
C
EFP ENCL FRAME PORCH
30 square feet
D
EFP ENCL FRAME PORCH OFP OPEN FRAME PORCH
42 square feet
E
OFP OPEN FRAME PORCH
161 square feet
Parcel Images
Please note:
this tab is for informational purposes only and may not show all delinquencies, see the Taxes tab for more accurate delinquent taxes due.