Elected Officials
Courts
Departments
Initiatives
Open Government
About
Login / Register
Home
/
Property & Tax Records
/
Property Records
/
Property & Tax Search
/
Parcel Profile
/
Print View
Search for Another Parcel
Parcel Profile
Historical Card
Sketches
Photos
Tax Map
Taxes
Print View
Print This Page
Address: 613 E 21 ST
Parcel: 18050025011300
Parcel Profile
Address
613 | E | 21 | ST
Street Status
PAVED | SIDEWALK
School District
CITY OF ERIE SCHOOL
Acreage
0.1175
Classification
R
Land Use Code
SINGLE FAMILY
Legal Description
613 E 21 ST 40 X 128
Square Feet
1721
Topo
LEVEL
Utility
ALL PUBLIC
Zoning
Please contact your municipal zoning officer
Deed Book
0164
Deed Page
0679
2026 Tax Values
Land Value / Taxable
5,500 / 5,500.00
Building Value / Taxable
19,910 / 19,910.00
Total Value / Taxable
25,410 / 25,410.00
Clean & Green
Inactive
Homestead Status
Active
Farmstead Status
Inactive
Lerta Amount
0
Lerta Expiration Year
0
Residential Data
Card 1
Style
OLD STYLE
Basement
FULL
Year Built
1877
Exterior Wall
COMPOSITION
Total Living Area
1721
Full Baths
1
Half Baths
0
Fuel Type
GAS
Heating
CENTRAL
Heating System
FORCED AIR
Stories
1.5
Total Bedrooms
2
Total Family Rooms
0
Total Rooms
5
Fireplaces
0
Other Buildings & Yards
No OBY Data Found
Sales History
Sale Date
Type
Price
Book / Page
Other Info
6/13/1991
0
0164 / 0679
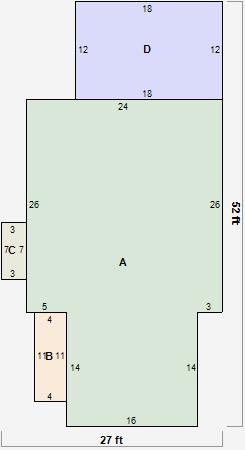
Parcel Sketches
Residential Card 1
A
MAIN
848 square feet
B
OFP OPEN FRAME PORCH
44 square feet
C
1S FR ONE STORY FRAME
21 square feet
D
1S FR ONE STORY FRAME
216 square feet
Parcel Images
Please note:
this tab is for informational purposes only and may not show all delinquencies, see the Taxes tab for more accurate delinquent taxes due.