Elected Officials
Courts
Departments
Initiatives
Open Government
About
Login / Register
Home
/
Property & Tax Records
/
Property Records
/
Property & Tax Search
/
Parcel Profile
/
Print View
Search for Another Parcel
Parcel Profile
Historical Card
Sketches
Photos
Tax Map
Taxes
Print View
Print This Page
Address: 630 E 21 ST
Parcel: 18050025020900
Parcel Profile
Address
630 | E | 21 | ST
Street Status
PAVED | SIDEWALK
School District
CITY OF ERIE SCHOOL
Acreage
0.1240
Classification
R
Land Use Code
SINGLE FAMILY
Legal Description
630 E 21 ST 40 X 135
Square Feet
1660
Topo
LEVEL
Utility
ALL PUBLIC
Zoning
Please contact your municipal zoning officer
Deed Book
2022
Deed Page
026697
2026 Tax Values
Land Value / Taxable
5,600 / 5,600.00
Building Value / Taxable
38,600 / 38,600.00
Total Value / Taxable
44,200 / 44,200.00
Clean & Green
Inactive
Homestead Status
Inactive
Farmstead Status
Inactive
Lerta Amount
0
Lerta Expiration Year
0
Residential Data
Card 1
Style
OLD STYLE
Basement
PART
Year Built
1901
Exterior Wall
ALUMINUM/VINYL
Total Living Area
1660
Full Baths
1
Half Baths
0
Fuel Type
GAS
Heating
CENTRAL A/C
Heating System
FORCED AIR
Stories
2.0
Total Bedrooms
3
Total Family Rooms
0
Total Rooms
6
Fireplaces
0
Other Buildings & Yards
Description
Built
Width
Length
Area
FRAME OR CB DETACHED GARAGE
1901
12
15
180
Sales History
Sale Date
Type
Price
Book / Page
Other Info
12/22/2022
LAND & BUILDING
30000
2022 / 026697
SPECIAL WARRANTY DEED
2/4/1971
0
1037 / 0448
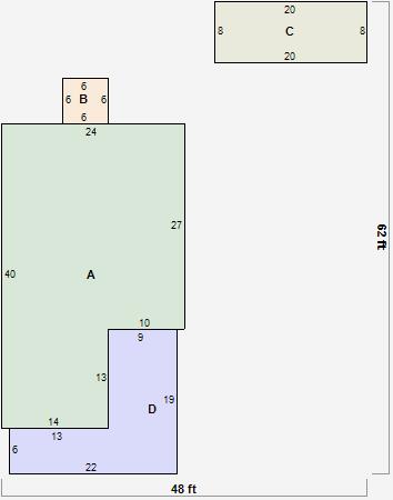
Parcel Sketches
Residential Card 1
A
MAIN
830 square feet
B
EFP ENCL FRAME PORCH
36 square feet
C
ST_PT STONE OR TILE PATIO
160 square feet
D
OFP OPEN FRAME PORCH
249 square feet
Parcel Images
Please note:
this tab is for informational purposes only and may not show all delinquencies, see the Taxes tab for more accurate delinquent taxes due.