Elected Officials
Courts
Departments
Initiatives
Open Government
About
Login / Register
Home
/
Property & Tax Records
/
Property Records
/
Property & Tax Search
/
Parcel Profile
/
Print View
Search for Another Parcel
Parcel Profile
Historical Card
Sketches
Photos
Tax Map
Taxes
Print View
Print This Page
Address: 604 06 E 23 ST ET 2225 ASH ST
Parcel: 18050026021700
Parcel Profile
Address
604 | 06 | E | 23 ST ET 2225 ASH | ST
Street Status
PAVED | SIDEWALK
School District
CITY OF ERIE SCHOOL
Acreage
0.1231
Classification
C
Land Use Code
NON-PROFIT ORG-ELKS,KNIGHTS OF COLUM ETC
Legal Description
604 06 E 23 ST ET 2225 ASH ST 80 X 67 | 0.1231 AC
Square Feet
4953
Topo
LEVEL
Utility
ALL PUBLIC
Zoning
Please contact your municipal zoning officer
Deed Book
2017
Deed Page
007077
2026 Tax Values
Land Value / Taxable
11,300 / 11,300.00
Building Value / Taxable
101,900 / 73,260.00
Total Value / Taxable
113,200 / 84,560.00
Clean & Green
Inactive
Homestead Status
Inactive
Farmstead Status
Inactive
Lerta Amount
0
Lerta Expiration Year
0
Commercial Data
Card 1
SOCIAL/FRATERNAL HALL
Business Living Area - 4953
Year Built - 1907
Improvement Name - SOCIETY OF HOLY TRINITY
Value - 135850
Other Buildings & Yards
No OBY Data Found
Sales History
Sale Date
Type
Price
Book / Page
Other Info
4/6/2017
LAND & BUILDING
0
2017 / 007077
DEED
8/5/1942
0
0420 / 0142
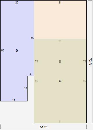
Parcel Sketches
Commercial Card 1
A
MAIN
1550 square feet
B
MAIN
2263 square feet
C
MAIN
1550 square feet
D
MAIN
1140 square feet
Parcel Images
Please note:
this tab is for informational purposes only and may not show all delinquencies, see the Taxes tab for more accurate delinquent taxes due.