Elected Officials
Courts
Departments
Initiatives
Open Government
About
Login / Register
Home
/
Property & Tax Records
/
Property Records
/
Property & Tax Search
/
Parcel Profile
/
Print View
Search for Another Parcel
Parcel Profile
Historical Card
Sketches
Photos
Tax Map
Taxes
Print View
Print This Page
Address: 614 E 26 ST
Parcel: 18050027012000
Parcel Profile
Address
614 | E | 26 | ST
Street Status
PAVED | SIDEWALK
School District
CITY OF ERIE SCHOOL
Acreage
0.1970
Classification
R
Land Use Code
SINGLE FAMILY
Legal Description
614 E 26 ST 60 X 143
Square Feet
1708
Topo
LEVEL
Utility
ALL PUBLIC
Zoning
Please contact your municipal zoning officer
Deed Book
0929
Deed Page
1663
2026 Tax Values
Land Value / Taxable
6,100 / 6,100.00
Building Value / Taxable
34,100 / 34,100.00
Total Value / Taxable
40,200 / 40,200.00
Clean & Green
Inactive
Homestead Status
Active
Farmstead Status
Inactive
Lerta Amount
0.00
Lerta Expiration Year
2014
Residential Data
Card 1
Style
OLD STYLE
Basement
FULL
Year Built
1901
Exterior Wall
ALUMINUM/VINYL
Total Living Area
1708
Full Baths
1
Half Baths
1
Fuel Type
GAS
Heating
CENTRAL
Heating System
FORCED AIR
Stories
1.5
Total Bedrooms
4
Total Family Rooms
1
Total Rooms
8
Fireplaces
0
Other Buildings & Yards
No OBY Data Found
Sales History
Sale Date
Type
Price
Book / Page
Other Info
10/7/2002
LAND & BUILDING
0
0929 / 1663
AFFIDAVIT
8/4/1997
0
0512 / 0746
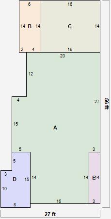
Parcel Sketches
Residential Card 1
A
MAIN
824 square feet
B
EFP ENCL FRAME PORCH
84 square feet
C
1S FR ONE STORY FRAME
224 square feet
D
OFP OPEN FRAME PORCH
105 square feet
E
1S FR ONE STORY FRAME
42 square feet
Parcel Images
Please note:
this tab is for informational purposes only and may not show all delinquencies, see the Taxes tab for more accurate delinquent taxes due.