Elected Officials
Courts
Departments
Initiatives
Open Government
About
Login / Register
Home
/
Property & Tax Records
/
Property Records
/
Property & Tax Search
/
Parcel Profile
/
Print View
Search for Another Parcel
Parcel Profile
Historical Card
Sketches
Photos
Tax Map
Taxes
Print View
Print This Page
Address: 758 E 22 ST
Parcel: 18050029010000
Parcel Profile
Address
758 | E | 22 | ST
Street Status
PAVED | SIDEWALK
School District
CITY OF ERIE SCHOOL
Acreage
0.0689
Classification
R
Land Use Code
SINGLE FAMILY
Legal Description
758 E 22 ST 50 X 60
Square Feet
1761
Topo
LEVEL
Utility
ALL PUBLIC
Zoning
Please contact your municipal zoning officer
Deed Book
2016
Deed Page
006863
2026 Tax Values
Land Value / Taxable
4,900 / 4,900.00
Building Value / Taxable
14,730 / 14,730.00
Total Value / Taxable
19,630 / 19,630.00
Clean & Green
Inactive
Homestead Status
Active
Farmstead Status
Inactive
Lerta Amount
0
Lerta Expiration Year
0
Residential Data
Card 1
Style
BUNGALOW
Basement
FULL
Year Built
1882
Exterior Wall
ALUMINUM/VINYL
Total Living Area
1761
Full Baths
1
Half Baths
0
Fuel Type
GAS
Heating
CENTRAL
Heating System
FORCED AIR
Stories
1.0
Total Bedrooms
3
Total Family Rooms
0
Total Rooms
8
Fireplaces
0
Other Buildings & Yards
Description
Built
Width
Length
Area
FRAME OR CB DETACHED GARAGE
1950
11
18
198
Sales History
Sale Date
Type
Price
Book / Page
Other Info
4/8/2016
LAND & BUILDING
6000
2016 / 006863
SPECIAL WARRANTY DEED
10/9/2015
LAND & BUILDING
2743
2015 / 022540
SHERIFF'S DED
11/13/2014
LAND & BUILDING
20000
2014 / 024464
DEED
5/9/1986
0
1628 / 0059
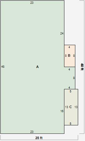
Parcel Sketches
Residential Card 1
A
MAIN
1136 square feet
B
EFP ENCL FRAME PORCH
32 square feet
C
OFP OPEN FRAME PORCH
65 square feet
Parcel Images
Please note:
this tab is for informational purposes only and may not show all delinquencies, see the Taxes tab for more accurate delinquent taxes due.