Elected Officials
Courts
Departments
Initiatives
Open Government
About
Login / Register
Home
/
Property & Tax Records
/
Property Records
/
Property & Tax Search
/
Parcel Profile
/
Print View
Search for Another Parcel
Parcel Profile
Historical Card
Sketches
Photos
Tax Map
Taxes
Print View
Print This Page
Address: 705 E 23 ST
Parcel: 18050030011500
Parcel Profile
Address
705 | E | 23 | ST
Street Status
PAVED | SIDEWALK
School District
CITY OF ERIE SCHOOL
Acreage
0.0803
Classification
R
Land Use Code
SINGLE FAMILY
Legal Description
705 E 23 ST 35 X 100
Square Feet
1353
Topo
LEVEL
Utility
ALL PUBLIC
Zoning
Please contact your municipal zoning officer
Deed Book
2018
Deed Page
012901
2026 Tax Values
Land Value / Taxable
5,300 / 5,300.00
Building Value / Taxable
31,200 / 31,200.00
Total Value / Taxable
36,500 / 36,500.00
Clean & Green
Inactive
Homestead Status
Inactive
Farmstead Status
Inactive
Lerta Amount
0
Lerta Expiration Year
0
Residential Data
Card 1
Style
BUNGALOW
Basement
FULL
Year Built
1887
Exterior Wall
FRAME
Total Living Area
1353
Full Baths
1
Half Baths
0
Fuel Type
GAS
Heating
CENTRAL
Heating System
FORCED AIR
Stories
1.0
Total Bedrooms
2
Total Family Rooms
0
Total Rooms
5
Fireplaces
0
Other Buildings & Yards
No OBY Data Found
Sales History
Sale Date
Type
Price
Book / Page
Other Info
6/29/2018
LAND & BUILDING
21000
2018 / 012901
FIDUCIARY DEED
9/11/1975
0
1171 / 0291
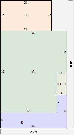
Parcel Sketches
Residential Card 1
A
MAIN
772 square feet
B
1S FR ONE STORY FRAME
240 square feet
C
1S FR ONE STORY FRAME
32 square feet
D
OFP OPEN FRAME PORCH
184 square feet
Parcel Images
Please note:
this tab is for informational purposes only and may not show all delinquencies, see the Taxes tab for more accurate delinquent taxes due.