Elected Officials
Courts
Departments
Initiatives
Open Government
About
Login / Register
Home
/
Property & Tax Records
/
Property Records
/
Property & Tax Search
/
Parcel Profile
/
Print View
Search for Another Parcel
Parcel Profile
Historical Card
Sketches
Photos
Tax Map
Taxes
Print View
Print This Page
Address: 725 E 22 ST
Parcel: 18050030021200
Parcel Profile
Address
725 | E | 22 | ST
Street Status
PAVED | SIDEWALK
School District
CITY OF ERIE SCHOOL
Acreage
0.0882
Classification
R
Land Use Code
TWO FAMILY
Legal Description
725 E 22 ST 30 X 128
Square Feet
1783
Topo
LEVEL
Utility
ALL PUBLIC
Zoning
Please contact your municipal zoning officer
Deed Book
2025
Deed Page
013769
2025 Tax Values
Land Value / Taxable
5,300 / 5,300.00
Building Value / Taxable
41,800 / 41,800.00
Total Value / Taxable
47,100 / 47,100.00
Clean & Green
Inactive
Homestead Status
Inactive
Farmstead Status
Inactive
Lerta Amount
0
Lerta Expiration Year
0
Residential Data
Card 1
Style
OLD STYLE
Basement
FULL
Year Built
1892
Exterior Wall
ALUMINUM/VINYL
Total Living Area
1783
Full Baths
2
Half Baths
0
Fuel Type
GAS
Heating
CENTRAL
Heating System
FORCED AIR
Stories
2.0
Total Bedrooms
5
Total Family Rooms
0
Total Rooms
10
Fireplaces
0
Other Buildings & Yards
Description
Built
Width
Length
Area
FRAME OR CB DETACHED GARAGE
1964
20
22
440
Sales History
Sale Date
Type
Price
Book / Page
Other Info
8/14/2025
LAND & BUILDING
65000
2025 / 013769
SPECIAL WARRANTY DEED
11/29/2004
LAND & BUILDING
18000
1192 / 1700
WARRANTY/SURVIVORSHIP DEED
6/30/1997
0
0506 / 0968
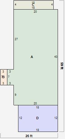
Parcel Sketches
Residential Card 1
A
MAIN
881 square feet
B
1S FR ONE STORY FRAME
21 square feet
C
EFP ENCL FRAME PORCH
72 square feet
D
EFP ENCL FRAME PORCH
216 square feet
Parcel Images