Elected Officials
Courts
Departments
Initiatives
Open Government
About
Login / Register
Home
/
Property & Tax Records
/
Property Records
/
Property & Tax Search
/
Parcel Profile
/
Print View
Search for Another Parcel
Parcel Profile
Historical Card
Sketches
Photos
Tax Map
Taxes
Print View
Print This Page
Address: 2410 12 WAYNE ST
Parcel: 18050031020300
Parcel Profile
Address
2410 | 12 | WAYNE | ST
Street Status
PAVED | SIDEWALK
School District
CITY OF ERIE SCHOOL
Acreage
0.0441
Classification
R
Land Use Code
TWO FAMILY
Legal Description
2410 12 WAYNE ST 60 X 32
Square Feet
1584
Topo
LEVEL
Utility
ALL PUBLIC
Zoning
Please contact your municipal zoning officer
Deed Book
2013
Deed Page
004640
2026 Tax Values
Land Value / Taxable
4,600 / 4,600.00
Building Value / Taxable
29,610 / 29,610.00
Total Value / Taxable
34,210 / 34,210.00
Clean & Green
Inactive
Homestead Status
Inactive
Farmstead Status
Inactive
Lerta Amount
0
Lerta Expiration Year
0
Residential Data
Card 1
Style
OLD STYLE
Basement
FULL
Year Built
1904
Exterior Wall
ALUMINUM/VINYL
Total Living Area
1584
Full Baths
2
Half Baths
0
Fuel Type
GAS
Heating
CENTRAL
Heating System
FORCED AIR
Stories
2.0
Total Bedrooms
4
Total Family Rooms
0
Total Rooms
10
Fireplaces
0
Other Buildings & Yards
No OBY Data Found
Sales History
Sale Date
Type
Price
Book / Page
Other Info
2/27/2013
LAND & BUILDING
33000
2013 / 004640
WARRANTY/SURVIVORSHIP DEED
7/31/2009
LAND & BUILDING
35000
1580 / 2312
DEED
6/12/2003
LAND & BUILDING
35000
1022 / 1676
WARRANTY/SURVIVORSHIP DEED
3/6/2002
LAND & BUILDING
31000
859 / 746
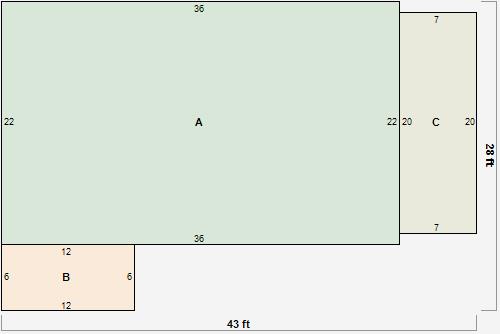
Parcel Sketches
Residential Card 1
A
MAIN
792 square feet
B
OFP OPEN FRAME PORCH
72 square feet
C
OFP OPEN FRAME PORCH EFP ENCL FRAME PORCH
140 square feet
Parcel Images
Please note:
this tab is for informational purposes only and may not show all delinquencies, see the Taxes tab for more accurate delinquent taxes due.