Elected Officials
Courts
Departments
Initiatives
Open Government
About
Login / Register
Home
/
Property & Tax Records
/
Property Records
/
Property & Tax Search
/
Parcel Profile
/
Print View
Search for Another Parcel
Parcel Profile
Historical Card
Sketches
Photos
Tax Map
Taxes
Print View
Print This Page
Address: 860 E 21 ST
Parcel: 18050033020000
Parcel Profile
Address
860 | E | 21 | ST
Street Status
PAVED | SIDEWALK
School District
CITY OF ERIE SCHOOL
Acreage
0.0899
Classification
R
Land Use Code
SINGLE FAMILY
Legal Description
860 E 21 ST 29 X 135
Square Feet
1337
Topo
LEVEL
Utility
ALL PUBLIC
Zoning
Please contact your municipal zoning officer
Deed Book
2018
Deed Page
005382
2025 Tax Values
Land Value / Taxable
5,300 / 5,300.00
Building Value / Taxable
25,200 / 25,200.00
Total Value / Taxable
30,500 / 30,500.00
Clean & Green
Inactive
Homestead Status
Active
Farmstead Status
Inactive
Lerta Amount
0
Lerta Expiration Year
0
Residential Data
Card 1
Style
OLD STYLE
Basement
FULL
Year Built
1897
Exterior Wall
ALUMINUM/VINYL
Total Living Area
1337
Full Baths
1
Half Baths
0
Fuel Type
GAS
Heating
CENTRAL
Heating System
FORCED AIR
Stories
1.5
Total Bedrooms
4
Total Family Rooms
0
Total Rooms
8
Fireplaces
0
Other Buildings & Yards
Description
Built
Width
Length
Area
FRAME OR CB DETACHED GARAGE
1976
18
22
396
Sales History
Sale Date
Type
Price
Book / Page
Other Info
3/23/2018
LAND & BUILDING
0
2018 / 005382
SPECIAL WARRANTY DEED
2/17/2006
LAND & BUILDING
15000
1307 / 0605
WARRANTY/SURVIVORSHIP DEED
9/16/1992
0
0230 / 1172
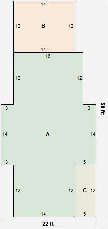
Parcel Sketches
Residential Card 1
A
MAIN
668 square feet
B
1S FR ONE STORY FRAME
168 square feet
C
OFP OPEN FRAME PORCH
60 square feet
Parcel Images