Elected Officials
Courts
Departments
Initiatives
Open Government
About
Login / Register
Home
/
Property & Tax Records
/
Property Records
/
Property & Tax Search
/
Parcel Profile
/
Print View
Search for Another Parcel
Parcel Profile
Historical Card
Sketches
Photos
Tax Map
Taxes
Print View
Print This Page
Address: 823 E 20 ST
Parcel: 18050033021400
Parcel Profile
Address
823 | E | 20 | ST
Street Status
PAVED | SIDEWALK
School District
CITY OF ERIE SCHOOL
Acreage
0.0930
Classification
R
Land Use Code
TWO FAMILY
Legal Description
823 E 20 ST 30 X 135
Square Feet
1696
Topo
LEVEL
Utility
ALL PUBLIC
Zoning
Please contact your municipal zoning officer
Deed Book
0572
Deed Page
0130
2026 Tax Values
Land Value / Taxable
5,400 / 5,400.00
Building Value / Taxable
35,400 / 35,400.00
Total Value / Taxable
40,800 / 40,800.00
Clean & Green
Inactive
Homestead Status
Active
Farmstead Status
Inactive
Lerta Amount
0
Lerta Expiration Year
0
Residential Data
Card 1
Style
OLD STYLE
Basement
FULL
Year Built
1911
Exterior Wall
ALUMINUM/VINYL
Total Living Area
1696
Full Baths
1
Half Baths
0
Fuel Type
GAS
Heating
CENTRAL
Heating System
FORCED AIR
Stories
2.0
Total Bedrooms
4
Total Family Rooms
0
Total Rooms
5
Fireplaces
0
Other Buildings & Yards
Description
Built
Width
Length
Area
FRAME UTILITY SHED
1984
15
15
225
Sales History
Sale Date
Type
Price
Book / Page
Other Info
7/6/1998
0
0572 / 0130
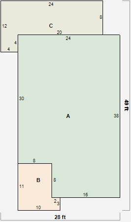
Parcel Sketches
Residential Card 1
A
MAIN
848 square feet
B
EFP ENCL FRAME PORCH
94 square feet
C
EFP ENCL FRAME PORCH
208 square feet
Parcel Images
Please note:
this tab is for informational purposes only and may not show all delinquencies, see the Taxes tab for more accurate delinquent taxes due.