Elected Officials
Courts
Departments
Initiatives
Open Government
About
Login / Register
Home
/
Property & Tax Records
/
Property Records
/
Property & Tax Search
/
Parcel Profile
/
Print View
Search for Another Parcel
Parcel Profile
Historical Card
Sketches
Photos
Tax Map
Taxes
Print View
Print This Page
Address: 820 E 21 ST
Parcel: 18050033022400
Parcel Profile
Address
820 | E | 21 | ST
Street Status
PAVED | SIDEWALK
School District
CITY OF ERIE SCHOOL
Acreage
0.1395
Classification
R
Land Use Code
THREE FAMILY
Legal Description
820 E 21 ST 45 X 135
Square Feet
2089
Topo
LEVEL
Utility
ALL PUBLIC
Zoning
Please contact your municipal zoning officer
Deed Book
2022
Deed Page
021011
2026 Tax Values
Land Value / Taxable
5,700 / 5,700.00
Building Value / Taxable
40,300 / 40,300.00
Total Value / Taxable
46,000 / 46,000.00
Clean & Green
Inactive
Homestead Status
Active
Farmstead Status
Inactive
Lerta Amount
0
Lerta Expiration Year
0
Residential Data
Card 1
Style
OLD STYLE
Basement
FULL
Year Built
1878
Exterior Wall
ALUMINUM/VINYL
Total Living Area
2089
Full Baths
3
Half Baths
0
Fuel Type
GAS
Heating
CENTRAL
Heating System
FORCED AIR
Stories
2.0
Total Bedrooms
5
Total Family Rooms
0
Total Rooms
10
Fireplaces
0
Other Buildings & Yards
Description
Built
Width
Length
Area
FRAME OR CB DETACHED GARAGE
1950
16
22
352
Sales History
Sale Date
Type
Price
Book / Page
Other Info
9/27/2022
LAND & BUILDING
0
2022 / 021011
QUIT CLAIM DEED
6/6/2019
LAND & BUILDING
5000
2019 / 010568
DEED
2/15/2018
LAND & BUILDING
0
2018 / 003076
TAX DEED
11/12/2002
LAND & BUILDING
39900
944 / 39
3/21/2000
LAND & BUILDING
20000
693 / 501
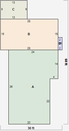
Parcel Sketches
Residential Card 1
A
MAIN
776 square feet
B
1S FR ONE STORY FRAME
420 square feet
C
1S FR ONE STORY FRAME
117 square feet
D
EFP ENCL FRAME PORCH
12 square feet
Parcel Images
Please note:
this tab is for informational purposes only and may not show all delinquencies, see the Taxes tab for more accurate delinquent taxes due.