Elected Officials
Courts
Departments
Initiatives
Open Government
About
Login / Register
Home
/
Property & Tax Records
/
Property Records
/
Property & Tax Search
/
Parcel Profile
/
Print View
Search for Another Parcel
Parcel Profile
Historical Card
Sketches
Photos
Tax Map
Taxes
Print View
Print This Page
Address: 2503 WAYNE ST
Parcel: 18050035011900
Parcel Profile
Address
2503 | WAYNE | ST
Street Status
PAVED | SIDEWALK
School District
CITY OF ERIE SCHOOL
Acreage
0.1435
Classification
R
Land Use Code
SINGLE FAMILY
Legal Description
2503 WAYNE ST 50 X 125
Square Feet
1736
Topo
LEVEL
Utility
ALL PUBLIC
Zoning
Please contact your municipal zoning officer
Deed Book
2024
Deed Page
010523
2026 Tax Values
Land Value / Taxable
5,900 / 5,900.00
Building Value / Taxable
54,500 / 54,500.00
Total Value / Taxable
60,400 / 60,400.00
Clean & Green
Inactive
Homestead Status
Inactive
Farmstead Status
Inactive
Lerta Amount
0
Lerta Expiration Year
0
Residential Data
Card 1
Style
OLD STYLE
Basement
FULL
Year Built
1911
Exterior Wall
ALUMINUM/VINYL
Total Living Area
1736
Full Baths
1
Half Baths
0
Fuel Type
GAS
Heating
CENTRAL
Heating System
FORCED AIR
Stories
2.0
Total Bedrooms
3
Total Family Rooms
2
Total Rooms
8
Fireplaces
0
Other Buildings & Yards
Description
Built
Width
Length
Area
FRAME OR CB DETACHED GARAGE
1911
18
20
360
DETACHED OPEN FR PORCH
2011
12
16
192
Sales History
Sale Date
Type
Price
Book / Page
Other Info
7/9/2024
LAND & BUILDING
75000
2024 / 010523
DEED
4/17/2018
LAND & BUILDING
20000
2018 / 006961
DEED
2/16/2018
LAND & BUILDING
1567
2018 / 003127
SHERIFF'S DED
7/24/2006
LAND & BUILDING
65000
1346 / 1937
WARRANTY/SURVIVORSHIP DEED
5/15/1998
0
0561 / 1481
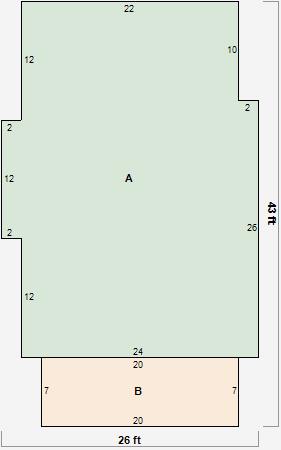
Parcel Sketches
Residential Card 1
A
MAIN
868 square feet
B
EMP ENCL MASONRY PORCH
140 square feet
Parcel Images
Please note:
this tab is for informational purposes only and may not show all delinquencies, see the Taxes tab for more accurate delinquent taxes due.