Elected Officials
Courts
Departments
Initiatives
Open Government
About
Login / Register
Home
/
Property & Tax Records
/
Property Records
/
Property & Tax Search
/
Parcel Profile
/
Print View
Search for Another Parcel
Parcel Profile
Historical Card
Sketches
Photos
Tax Map
Taxes
Print View
Print This Page
Address: 963 E 21 ST
Parcel: 18050037010500
Parcel Profile
Address
963 | E | 21 | ST
Street Status
PAVED | SIDEWALK
School District
CITY OF ERIE SCHOOL
Acreage
0.0614
Classification
R
Land Use Code
SINGLE FAMILY
Legal Description
963 E 21 ST 44.57 X 60
Square Feet
1542
Topo
LEVEL
Utility
ALL PUBLIC
Zoning
Please contact your municipal zoning officer
Deed Book
1367
Deed Page
0194
2026 Tax Values
Land Value / Taxable
4,800 / 4,800.00
Building Value / Taxable
33,100 / 33,100.00
Total Value / Taxable
37,900 / 37,900.00
Clean & Green
Inactive
Homestead Status
Active
Farmstead Status
Inactive
Lerta Amount
0
Lerta Expiration Year
0
Residential Data
Card 1
Style
OLD STYLE
Basement
FULL
Year Built
1911
Exterior Wall
ALUMINUM/VINYL
Total Living Area
1542
Full Baths
1
Half Baths
0
Fuel Type
GAS
Heating
CENTRAL
Heating System
FORCED AIR
Stories
2.0
Total Bedrooms
4
Total Family Rooms
0
Total Rooms
8
Fireplaces
0
Other Buildings & Yards
No OBY Data Found
Sales History
Sale Date
Type
Price
Book / Page
Other Info
10/10/1979
0
1367 / 0194
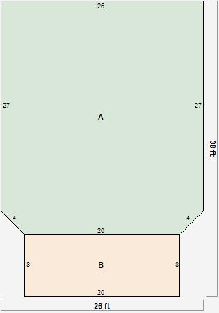
Parcel Sketches
Residential Card 1
A
MAIN
771 square feet
B
OFP OPEN FRAME PORCH
160 square feet
Parcel Images
Please note:
this tab is for informational purposes only and may not show all delinquencies, see the Taxes tab for more accurate delinquent taxes due.