Elected Officials
Courts
Departments
Initiatives
Open Government
About
Login / Register
Home
/
Property & Tax Records
/
Property Records
/
Property & Tax Search
/
Parcel Profile
/
Print View
Search for Another Parcel
Parcel Profile
Historical Card
Sketches
Photos
Tax Map
Taxes
Print View
Print This Page
Address: 959 E 21 ST
Parcel: 18050037010600
Parcel Profile
Address
959 | E | 21 | ST
Street Status
PAVED | SIDEWALK
School District
CITY OF ERIE SCHOOL
Acreage
0.0614
Classification
R
Land Use Code
SINGLE FAMILY
Legal Description
959 E 21 ST 44.57 X 60
Square Feet
1560
Topo
LEVEL
Utility
ALL PUBLIC
Zoning
Please contact your municipal zoning officer
Deed Book
2014
Deed Page
023672
2025 Tax Values
Land Value / Taxable
4,800 / 4,800.00
Building Value / Taxable
30,000 / 30,000.00
Total Value / Taxable
34,800 / 34,800.00
Clean & Green
Inactive
Homestead Status
Inactive
Farmstead Status
Inactive
Lerta Amount
0
Lerta Expiration Year
0
Residential Data
Card 1
Style
OLD STYLE
Basement
FULL
Year Built
1911
Exterior Wall
COMPOSITION
Total Living Area
1560
Full Baths
1
Half Baths
0
Fuel Type
GAS
Heating
CENTRAL
Heating System
FORCED AIR
Stories
2.0
Total Bedrooms
4
Total Family Rooms
0
Total Rooms
8
Fireplaces
0
Other Buildings & Yards
No OBY Data Found
Sales History
Sale Date
Type
Price
Book / Page
Other Info
11/4/2014
LAND & BUILDING
9000
2014 / 023672
DEED
3/28/2013
LAND & BUILDING
0
2013 / 007147
QUIT CLAIM DEED
3/3/1997
0
0485 / 2362
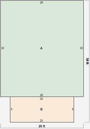
Parcel Sketches
Residential Card 1
A
MAIN
780 square feet
B
OFP OPEN FRAME PORCH
160 square feet
Parcel Images